2415 Warner Avenue, North Center, Chicago, Illinois 60618
$1,112,000
|
Sold
|
|
| Status: | Closed |
| Sqft: | 0 |
| Cost/Sqft: | — |
| Beds: | 9 |
| Baths: | 0 |
| Year Built: | 1918 |
| Property Taxes: | $15,125 |
| Days On Market: | 586 |
| Lot Size: | 0,00 |
Description
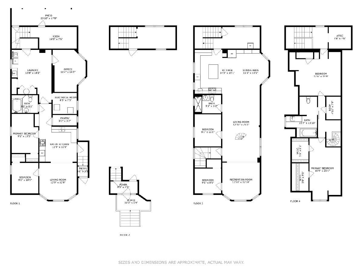
Stunning and well cared for North Center legal 3 flat on a 30ft wide lot with amazing duplex up owner's residence on a one way picturesque tree-lined street in the highly sought after Coonley School district. Ideal for a live-in owner who can leave inexpensively with two income producing units or keep as an armchair investment and lease out all three units. The top-floor condo quality owner's unit has a contemporary open floor plan on the main level with multiple living and dining spaces, two bedrooms, full bathroom and a chef's kitchen with great counter space, stainless steel appliances and large island with butcher block top. The second level has two large bedrooms with great closet space, a reading nook and a well appointed full bathroom with soaking tub and shower. The extremely spacious 3bd/1ba first floor unit with hardwood floors throughout was recently upgraded with stainless steel appliances and a pristine bathroom which is rented for 2500 until 5/26. The ground floor unit has great ceiling height, private side entrance, expansive living area with two bedrooms and one bathroom and has been rented to a long term tenant for 1250. The rest of the lower level encompasses mechanical/utility rooms, bldg laundry, sump pump and a large bonus office space for the use of the owner that was just refinished and perfect for home office or gym. Completing this one of a kind building is large manicured yard with privacy fence, a newer detached 2.5 car garage with tons of storage space. A must see building only blocks to the River Walk, Horner Park, Coonley School and North Center restaurants and retail.
Property Specifics
| Multi-unit | |
| — | |
| — | |
| 1918 | |
| — | |
| — | |
| No | |
| — |
| Cook | |
| — | |
| — / — | |
| — | |
| — | |
| — | |
| 12165005 | |
| 13134140160000 |
Nearby Schools
| NAME: | DISTRICT: | DISTANCE: | |
|---|---|---|---|
|
Grade School
Coonley Elementary School |
299 | — | |
|
Middle School
Coonley Elementary School |
299 | Not in DB | |
|
High School
Amundsen High School |
299 | Not in DB | |
Property History
| DATE: | EVENT: | PRICE: | SOURCE: |
|---|---|---|---|
| 27 May, 2022 | Sold | $926,000 | MRED MLS |
| 18 Mar, 2022 | Under contract | $900,000 | MRED MLS |
| 28 Feb, 2022 | Listed for sale | $900,000 | MRED MLS |
| 16 Dec, 2024 | Sold | $1,112,000 | MRED MLS |
| 23 Oct, 2024 | Under contract | $1,149,000 | MRED MLS |
| 19 Sep, 2024 | Listed for sale | $1,149,000 | MRED MLS |
Room Specifics
Total Bedrooms: 9
Bedrooms Above Ground: 9
Bedrooms Below Ground: 0
Dimensions: —
Floor Type: —
Dimensions: —
Floor Type: —
Dimensions: —
Floor Type: —
Dimensions: —
Floor Type: —
Dimensions: —
Floor Type: —
Dimensions: —
Floor Type: —
Dimensions: —
Floor Type: —
Dimensions: —
Floor Type: —
Full Bathrooms: 4
Bathroom Amenities: Whirlpool
Bathroom in Basement: —
Rooms: —
Basement Description: Partially Finished,Exterior Access,Egress Window
Other Specifics
| 2 | |
| — | |
| — | |
| — | |
| — | |
| 30 X 124 | |
| — | |
| — | |
| — | |
| — | |
| Not in DB | |
| — | |
| — | |
| — | |
| — |
Tax History
| Year | Property Taxes |
|---|---|
| 2022 | $13,301 |
| 2024 | $15,125 |
Contact Agent
Nearby Similar Homes
Nearby Sold Comparables
Contact Agent
Listing Provided By
Compass


