2442 Trailside Lane, Wauconda, Illinois 60084
$350,000
|
Sold
|
|
| Status: | Closed |
| Sqft: | 2,795 |
| Cost/Sqft: | $121 |
| Beds: | 4 |
| Baths: | 3 |
| Year Built: | 2006 |
| Property Taxes: | $10,770 |
| Days On Market: | 1775 |
| Lot Size: | 0,30 |
Description
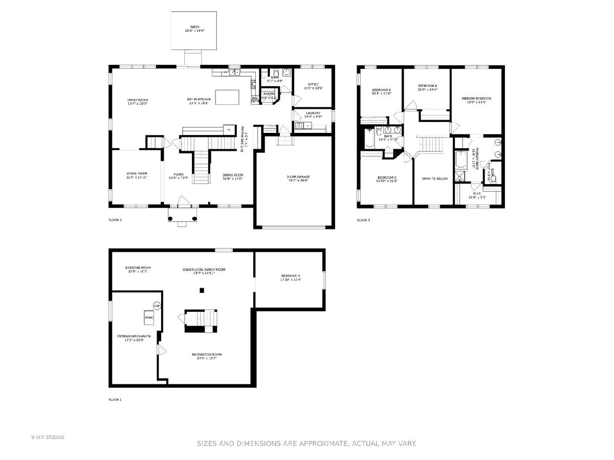
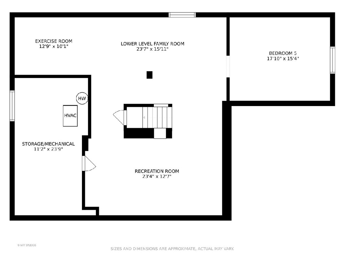
Welcome to Liberty Lakes and Fremont / MHS district schools. You will feel welcome from the moment you open the front door. As you circle through the main level, you will like the open foyer. Look left as you come through the formal living room into the open family room flooded with light. The large kitchen (with table space) provides plenty of counter and cabinet space, an island, butler's pantry, walk in pantry and more. Off of the kitchen are sliders to your back patio and large corner lot back yard. Rounding out the main floor off of the kitchen is a half bath, laundry room, office and the formal dining room. Head upstairs from the dual staircase to four spacious bedrooms including a primary bedroom and ensuite bath, three additional spacious bedrooms and a full hall bath. The ensuite bath has double sinks, a soaking tub, separate shower and large walk in closet. Head down to the finished basement where you will find three separate recreation areas, mechanical room (with plenty of storage) and a large craft room (that could also be a 5th bedroom). Well maintained mechanicals, new shutters and more. Come tour in confidence.
Property Specifics
| Single Family | |
| — | |
| — | |
| 2006 | |
| Full | |
| FRANKLIN | |
| No | |
| 0.3 |
| Lake | |
| Liberty Lakes | |
| 350 / Annual | |
| None | |
| Lake Michigan | |
| Public Sewer | |
| 11101991 | |
| 10181020080000 |
Nearby Schools
| NAME: | DISTRICT: | DISTANCE: | |
|---|---|---|---|
|
Grade School
Fremont Elementary School |
79 | — | |
|
Middle School
Fremont Middle School |
79 | Not in DB | |
|
High School
Mundelein Cons High School |
120 | Not in DB | |
Property History
| DATE: | EVENT: | PRICE: | SOURCE: |
|---|---|---|---|
| 28 Jul, 2021 | Sold | $350,000 | MRED MLS |
| 31 May, 2021 | Under contract | $339,000 | MRED MLS |
| 27 May, 2021 | Listed for sale | $339,000 | MRED MLS |
Room Specifics
Total Bedrooms: 5
Bedrooms Above Ground: 4
Bedrooms Below Ground: 1
Dimensions: —
Floor Type: Wood Laminate
Dimensions: —
Floor Type: Wood Laminate
Dimensions: —
Floor Type: Wood Laminate
Dimensions: —
Floor Type: —
Full Bathrooms: 3
Bathroom Amenities: Separate Shower,Double Sink,Soaking Tub
Bathroom in Basement: 0
Rooms: Bedroom 5,Office,Recreation Room,Exercise Room,Family Room,Foyer,Utility Room-Lower Level,Walk In Closet
Basement Description: Partially Finished
Other Specifics
| 2.5 | |
| Concrete Perimeter | |
| Asphalt | |
| Patio, Storms/Screens | |
| Corner Lot,Landscaped | |
| 60 X 150 | |
| Unfinished | |
| Full | |
| Wood Laminate Floors, First Floor Laundry, Walk-In Closet(s), Some Carpeting, Drapes/Blinds | |
| Double Oven, Microwave, Dishwasher, Refrigerator, Washer, Dryer, Disposal, Cooktop | |
| Not in DB | |
| Park, Curbs, Sidewalks, Street Lights, Street Paved | |
| — | |
| — | |
| — |
Tax History
| Year | Property Taxes |
|---|---|
| 2021 | $10,770 |
Contact Agent
Nearby Similar Homes
Nearby Sold Comparables
Contact Agent
Listing Provided By
Baird & Warner


