3719 Marshfield Avenue, Lake View, Chicago, Illinois 60613
$1,215,000
|
Sold
|
|
| Status: | Closed |
| Sqft: | 3,354 |
| Cost/Sqft: | $343 |
| Beds: | 5 |
| Baths: | 3 |
| Year Built: | 1898 |
| Property Taxes: | $15,191 |
| Days On Market: | 403 |
| Lot Size: | 0,07 |
Description
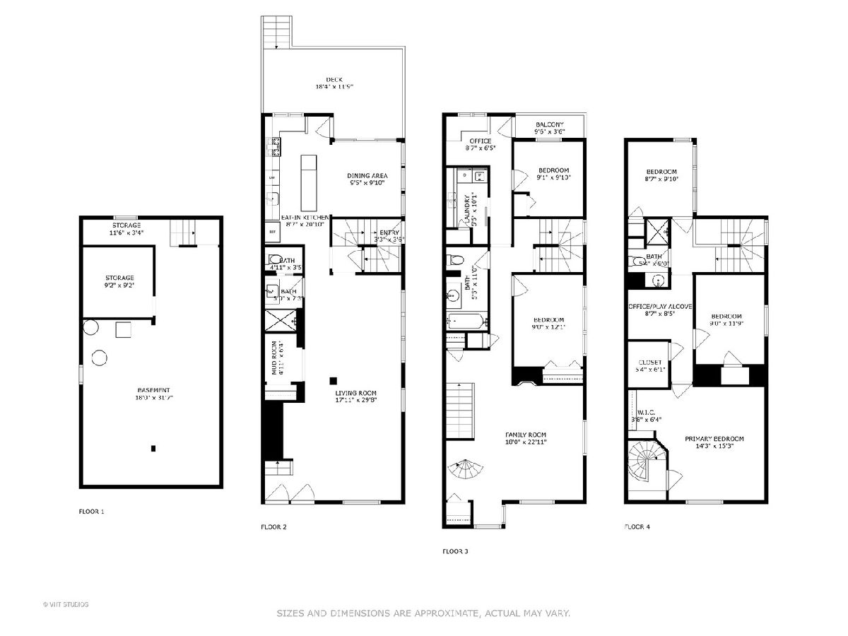
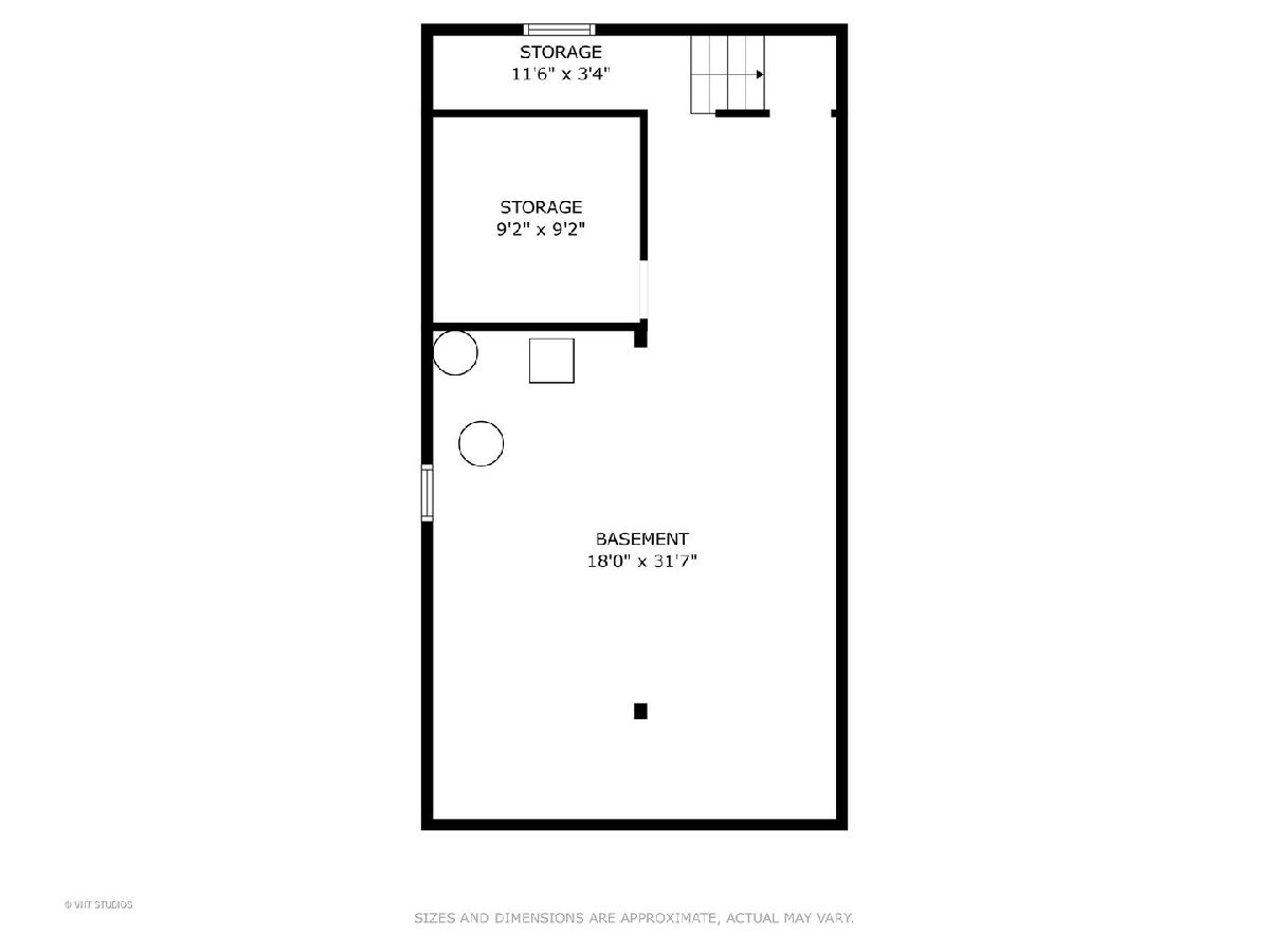
Rare chance to own this spacious 5 Bed/3 Bath home in the prime area of Lakeview where quiet living on a tree-lined one-way street is mixed with being in the heart of city living - and the bonus is that it's also in the highly rated Blaine Elementary School District! Easy to get to everything locale with great shops, restaurants, Southport Corridor, Trader Joe's, Whole Foods, the Brown Line plus the Merryman Playground right across the street. Be welcomed home everyday to an expansive living area with newer hardwood flooring and a walk-in closet for all your winter needs. Modern white-on-white kitchen accented with gold finishes, quartz counters, ample cabinet space, marble backsplash and all stainless appliances. Modern light fixtures illuminate the breakfast bar, while the kitchen and dining area opens onto a large deck built for entertaining with a gas hook up - perfect for summer barbecues. A full bath with mosaic tiling completes the first level. The second floor offers a massive family room with floor to ceiling windows that bring in a ton of natural light. Here you can also find two bedrooms, skylights equipped with electric blinds and a bright office to work from home or use as a great study space. The laundry room is fully equipped with side-by-side W/D, built-in shelving & cabinets for extra storage. Modern bath finishes with a soaking tub complete this level. A decorative spiral staircase climbs to the 3rd story, providing a private entrance to the primary bedroom or take the central staircase to the 3 bedrooms on this level. Enjoy the vaulted ceilings, the abundance of natural light and the exposed wooden beams. There is a full bath with a walk-in shower and a quiet reading nook or play area. The full unfinished basement provides tons of storage and it awaits your ideas for expansion. Enjoy the backyard with its oversized deck under the shade of a mature tree. The garage is new and has ample space for 2 cars and plenty of additional storage. Exciting homes at this price in this location do not come on the market often, book your showing today before it's gone.
Property Specifics
| Single Family | |
| — | |
| — | |
| 1898 | |
| — | |
| — | |
| No | |
| 0.07 |
| Cook | |
| — | |
| 0 / Not Applicable | |
| — | |
| — | |
| — | |
| 12285498 | |
| 14192240140000 |
Nearby Schools
| NAME: | DISTRICT: | DISTANCE: | |
|---|---|---|---|
|
Grade School
Blaine Elementary School |
299 | — | |
|
Middle School
Blaine Elementary School |
299 | Not in DB | |
|
High School
Lake View High School |
299 | Not in DB | |
Property History
| DATE: | EVENT: | PRICE: | SOURCE: |
|---|---|---|---|
| 30 Mar, 2012 | Sold | $530,000 | MRED MLS |
| 13 Feb, 2012 | Under contract | $549,000 | MRED MLS |
| 30 Jan, 2012 | Listed for sale | $549,000 | MRED MLS |
| 1 Feb, 2019 | Sold | $699,000 | MRED MLS |
| 15 Nov, 2018 | Under contract | $699,000 | MRED MLS |
| 1 Nov, 2018 | Listed for sale | $699,000 | MRED MLS |
| 13 Aug, 2021 | Sold | $950,000 | MRED MLS |
| 10 Jun, 2021 | Under contract | $970,000 | MRED MLS |
| 21 May, 2021 | Listed for sale | $970,000 | MRED MLS |
| 10 Apr, 2025 | Sold | $1,215,000 | MRED MLS |
| 9 Mar, 2025 | Under contract | $1,150,000 | MRED MLS |
| 3 Mar, 2025 | Listed for sale | $1,150,000 | MRED MLS |
Room Specifics
Total Bedrooms: 5
Bedrooms Above Ground: 5
Bedrooms Below Ground: 0
Dimensions: —
Floor Type: —
Dimensions: —
Floor Type: —
Dimensions: —
Floor Type: —
Dimensions: —
Floor Type: —
Full Bathrooms: 3
Bathroom Amenities: Separate Shower,Soaking Tub
Bathroom in Basement: 0
Rooms: —
Basement Description: —
Other Specifics
| 2 | |
| — | |
| — | |
| — | |
| — | |
| 25X125 | |
| — | |
| — | |
| — | |
| — | |
| Not in DB | |
| — | |
| — | |
| — | |
| — |
Tax History
| Year | Property Taxes |
|---|---|
| 2012 | $6,985 |
| 2019 | $12,091 |
| 2021 | $12,369 |
| 2025 | $15,191 |
Contact Agent
Nearby Similar Homes
Nearby Sold Comparables
Contact Agent
Listing Provided By
@properties Christie's International Real Estate


