4256 Keeler Avenue, Irving Park, Chicago, Illinois 60641
$1,695,000
|
Sold
|
|
| Status: | Closed |
| Sqft: | 5,000 |
| Cost/Sqft: | $345 |
| Beds: | 6 |
| Baths: | 5 |
| Year Built: | 1908 |
| Property Taxes: | $15,261 |
| Days On Market: | 290 |
| Lot Size: | 0,17 |
Description
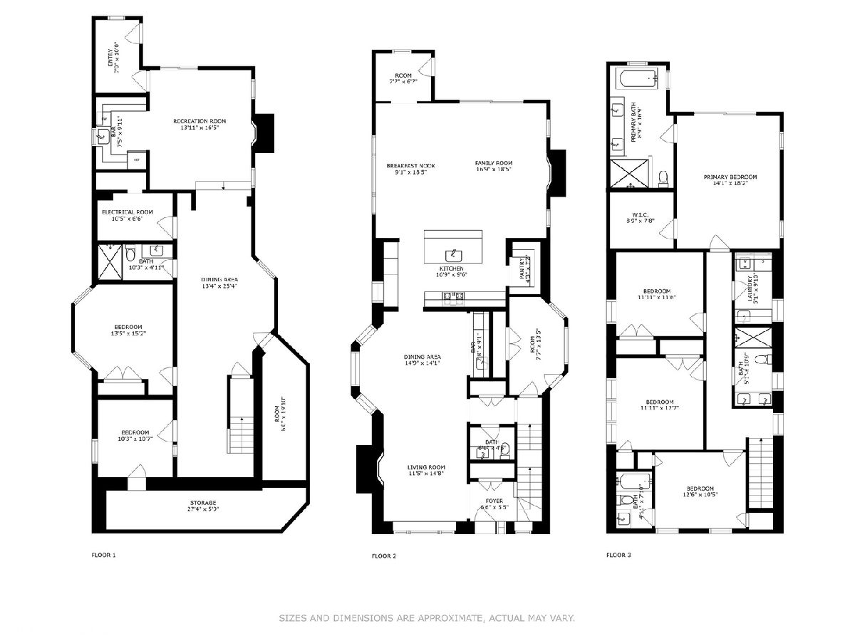
Discover unparalleled luxury in charming, picturesque Old Irving Park! This 2025 custom-built 6-bedroom, 5-bath gem blends timeless elegance with modern luxury on a rare, sprawling 156x47 corner lot. Sun-drenched interiors with oversized European windows, four fireplaces and expansive yards - complete with decks and wraparound front porch - create the ideal home for everyday comfort and entertaining. Host unforgettable gatherings in the chef's kitchen featuring top-of-the-line Thermador appliances, a walk-in pantry and custom rift sawn oak island. The kitchen flows into a bright family room and eat-in dining area with soft touch sliding patio doors opening to a covered deck for year - round grilling. Adjacent to the kitchen, the formal dining room boasts a perfect space to entertain with a built-in beverage station. Nearby, a private office with bright bay windows and a front porch entrance offers a serene workspace. Retreat to the primary suite, an oasis with a spa-like bath, radiant heated floors, fireplace, and private deck. The upper level features three additional bedrooms, including a second ensuite, full bath and convenient laundry room. The versatile lower level offers an in-law suite with a wine cellar, huge storage areas, mini kitchen, and two bedrooms-perfect for guests, multigenerational living or a custom gym or playroom. Enjoy peace of mind with a fully sprinklered lawn, raised garden beds for organic gardening and 3-car EV-ready garage. Eight CCTV cameras integrated into a smart home security system add to the convenience of this completely remodeled, low maintenance home. Discover this gem of a location in Old Irving Park that offers multiple commuting options: blocks to the Blue Line and 2 Metra stations, minutes to the Kennedy expressway and steps to award- winning Belding Elementary. Experience the perfect blend of city access and suburban charm, complete with a 1-year home warranty. Schedule your private tour today!
Property Specifics
| Single Family | |
| — | |
| — | |
| 1908 | |
| — | |
| — | |
| No | |
| 0.17 |
| Cook | |
| Old Irving | |
| 0 / Not Applicable | |
| — | |
| — | |
| — | |
| 12375876 | |
| 13154090070000 |
Nearby Schools
| NAME: | DISTRICT: | DISTANCE: | |
|---|---|---|---|
|
Grade School
Belding Elementary School |
299 | — | |
|
High School
Schurz High School |
299 | Not in DB | |
|
Alternate Elementary School
Disney Ii Elementary Magnet Scho |
— | Not in DB | |
Property History
| DATE: | EVENT: | PRICE: | SOURCE: |
|---|---|---|---|
| 7 Apr, 2023 | Sold | $530,000 | MRED MLS |
| 24 Mar, 2023 | Under contract | $575,000 | MRED MLS |
| 28 Feb, 2023 | Listed for sale | $575,000 | MRED MLS |
| 12 Aug, 2025 | Sold | $1,695,000 | MRED MLS |
| 18 Jun, 2025 | Under contract | $1,725,000 | MRED MLS |
| 27 May, 2025 | Listed for sale | $1,725,000 | MRED MLS |
Room Specifics
Total Bedrooms: 6
Bedrooms Above Ground: 6
Bedrooms Below Ground: 0
Dimensions: —
Floor Type: —
Dimensions: —
Floor Type: —
Dimensions: —
Floor Type: —
Dimensions: —
Floor Type: —
Dimensions: —
Floor Type: —
Full Bathrooms: 5
Bathroom Amenities: Separate Shower,Double Sink,Soaking Tub
Bathroom in Basement: 1
Rooms: —
Basement Description: —
Other Specifics
| 3 | |
| — | |
| — | |
| — | |
| — | |
| 47X156 | |
| — | |
| — | |
| — | |
| — | |
| Not in DB | |
| — | |
| — | |
| — | |
| — |
Tax History
| Year | Property Taxes |
|---|---|
| 2023 | $4,083 |
| 2025 | $15,261 |
Contact Agent
Nearby Similar Homes
Nearby Sold Comparables
Contact Agent
Listing Provided By
@properties Christie's International Real Estate


