449 Wells Street, Near North Side, Chicago, Illinois 60654
$555,000
|
Sold
|
|
| Status: | Closed |
| Sqft: | 1,395 |
| Cost/Sqft: | $405 |
| Beds: | 2 |
| Baths: | 2 |
| Year Built: | 1932 |
| Property Taxes: | $6,892 |
| Days On Market: | 2006 |
| Lot Size: | 0,00 |
Description
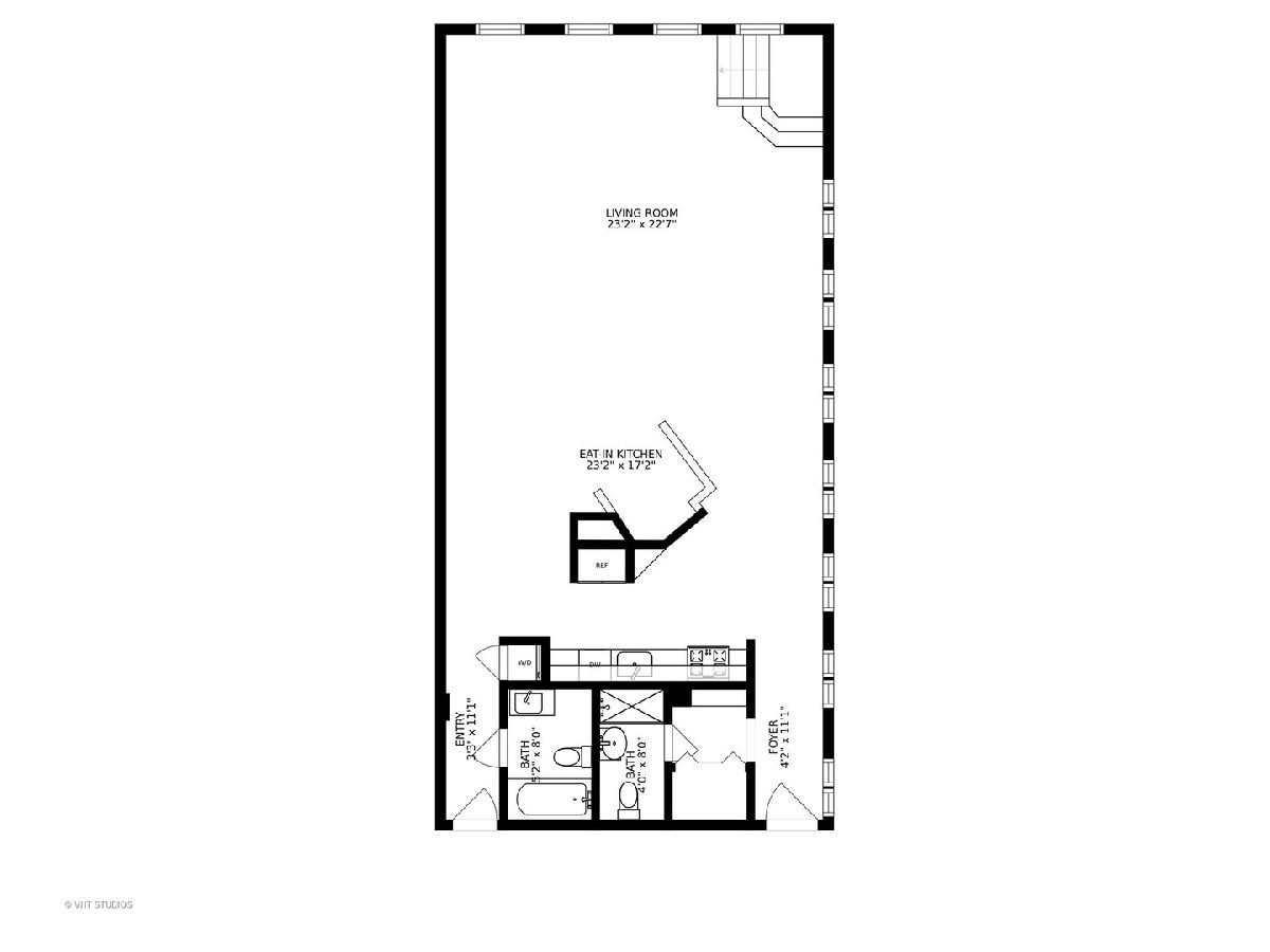
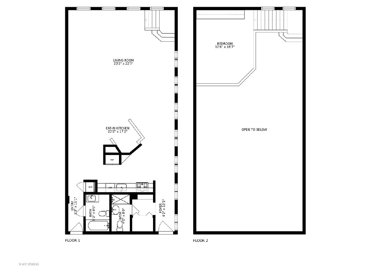
Newly renovated penthouse unit in a rarely available boutique building with a private 1100 sq. ft. rooftop terrace with full city view. The impeccably reimagined penthouse unit has been upgraded with smart technology including automated voice control, ecobee smart thermostat and wifi home security system. This split level unit features complete open living floor plan with 15' timber ceiling, a 50' original brick wall, and eleven 7ft. windows with custom shutters and a massive skylight equipped with automatic blackout shade. Bright modern kitchen with Carrera marble backsplash, quartz countertops & high-end stainless steel appliance package with wine cooler. A polished poured concrete staircase leads you to the lofted king sized bedroom featuring a floating glass bio fuel fireplace and retractable 110" motorized projector screen. In unit laundry and aroma therapy air conditioning system are a few add-on features of this completely custom penthouse loft. Unique details are throughout the unit from antique light fixtures imported from Germany to stain glass transom windows salvaged from historic 3800 block of Chicago.
Property Specifics
| Condos/Townhomes | |
| 3 | |
| — | |
| 1932 | |
| None | |
| — | |
| No | |
| — |
| Cook | |
| — | |
| 417 / Monthly | |
| Water,Insurance,Exterior Maintenance,Scavenger,Snow Removal | |
| Lake Michigan | |
| Public Sewer | |
| 10861387 | |
| 17092520181006 |
Property History
| DATE: | EVENT: | PRICE: | SOURCE: |
|---|---|---|---|
| 10 Jan, 2017 | Sold | $420,000 | MRED MLS |
| 25 Nov, 2016 | Under contract | $449,990 | MRED MLS |
| 9 Sep, 2016 | Listed for sale | $449,990 | MRED MLS |
| 18 Dec, 2020 | Sold | $555,000 | MRED MLS |
| 22 Oct, 2020 | Under contract | $565,000 | MRED MLS |
| — | Last price change | $595,000 | MRED MLS |
| 17 Sep, 2020 | Listed for sale | $595,000 | MRED MLS |
Room Specifics
Total Bedrooms: 2
Bedrooms Above Ground: 2
Bedrooms Below Ground: 0
Dimensions: —
Floor Type: Wood Laminate
Full Bathrooms: 2
Bathroom Amenities: —
Bathroom in Basement: 0
Rooms: Storage,Terrace,Eating Area
Basement Description: None
Other Specifics
| — | |
| — | |
| — | |
| Roof Deck | |
| — | |
| COMMON | |
| — | |
| Full | |
| Vaulted/Cathedral Ceilings, Skylight(s), Wood Laminate Floors, First Floor Laundry, First Floor Full Bath, Storage, Built-in Features, Beamed Ceilings, Open Floorplan, Granite Counters | |
| Range, Microwave, Dishwasher, High End Refrigerator, Freezer, Washer, Dryer, Disposal, Stainless Steel Appliance(s), Wine Refrigerator, Range Hood, Water Softener Owned, Gas Oven, Range Hood | |
| Not in DB | |
| — | |
| — | |
| Storage | |
| Double Sided |
Tax History
| Year | Property Taxes |
|---|---|
| 2017 | $4,865 |
| 2020 | $6,892 |
Contact Agent
Nearby Similar Homes
Nearby Sold Comparables
Contact Agent
Listing Provided By
Baird & Warner


