5036 Monticello Avenue, Albany Park, Chicago, Illinois 60625
$380,000
|
Sold
|
|
| Status: | Closed |
| Sqft: | 2,104 |
| Cost/Sqft: | $161 |
| Beds: | 4 |
| Baths: | 1 |
| Year Built: | 1926 |
| Property Taxes: | $2,282 |
| Days On Market: | 1164 |
| Lot Size: | 0,00 |
Description
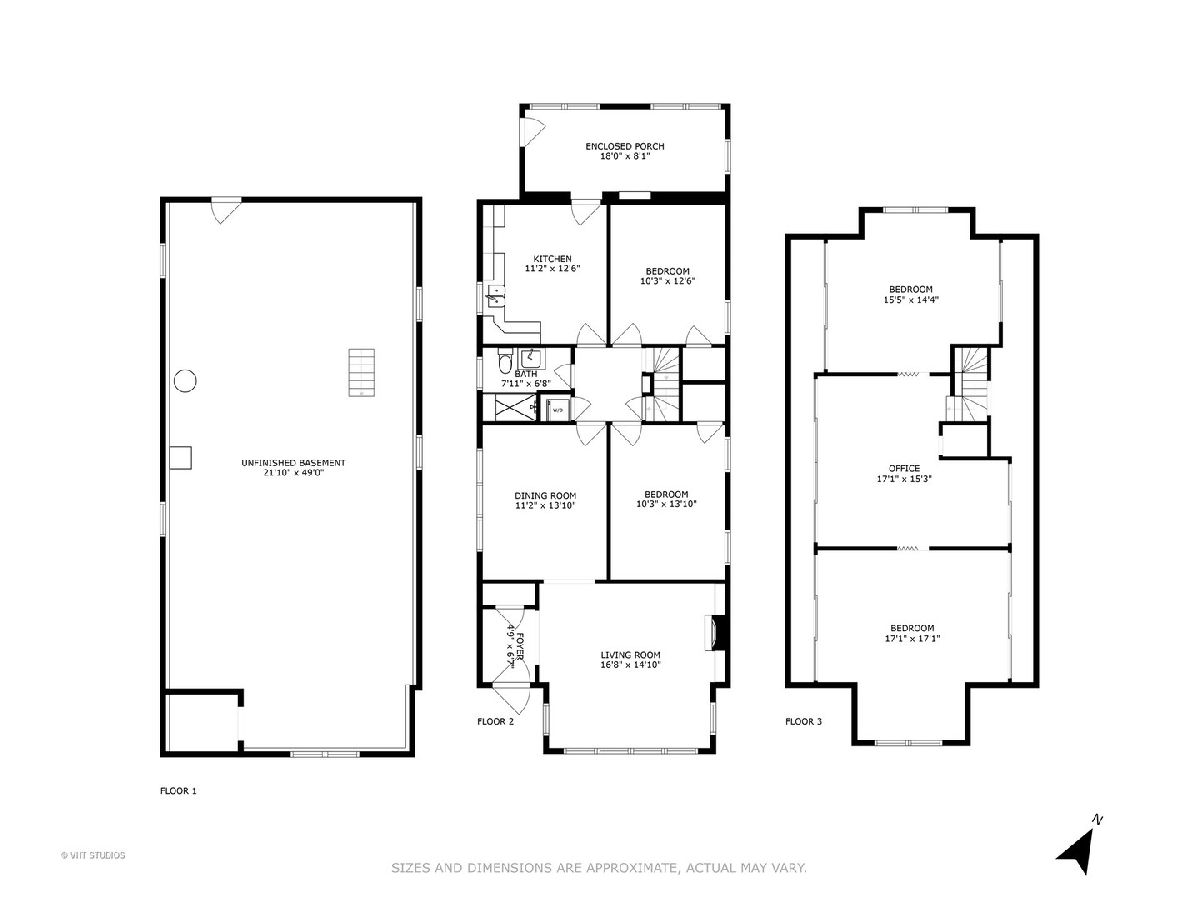
Old World Charm in this solid-built Brick Bungalow in Albany Park. Gorgeous renovation in '18: Gorgeous Kitchen with White Cabinets, Quartz Counters, & Ceramic Wood-look floors. Luxurious Bathroom with step-in Shower, seamless glass shower doors, and tiles. Spacious Living Rm & Separate Dining Rm with gleaming Hardwood Floors, Crown Molding & Trim. Two bedrooms on first floor and two bedrooms on 2nd floor. Knotty-pine enclosed Back Porch has adapter for a radiator- great for extended living space. Newer mechanicals include;Hi-efficiency Boiler & Hot Water Heater. Roof replaced approx '17. 1 Car Garage w/ newer Door. Close proximity to Eugene Field Park and Volta School. Nearby shopping: Jewel & Target. Convenient access to 90/94 and the CTA Blue line. Sold as-is. (Appliance credit of $2500)
Property Specifics
| Single Family | |
| — | |
| — | |
| 1926 | |
| — | |
| — | |
| No | |
| — |
| Cook | |
| — | |
| — / Not Applicable | |
| — | |
| — | |
| — | |
| 11717448 | |
| 13113110280000 |
Property History
| DATE: | EVENT: | PRICE: | SOURCE: |
|---|---|---|---|
| 9 Mar, 2023 | Sold | $380,000 | MRED MLS |
| 15 Feb, 2023 | Under contract | $339,000 | MRED MLS |
| 12 Feb, 2023 | Listed for sale | $339,000 | MRED MLS |
Room Specifics
Total Bedrooms: 4
Bedrooms Above Ground: 4
Bedrooms Below Ground: 0
Dimensions: —
Floor Type: —
Dimensions: —
Floor Type: —
Dimensions: —
Floor Type: —
Full Bathrooms: 1
Bathroom Amenities: —
Bathroom in Basement: 0
Rooms: —
Basement Description: Unfinished
Other Specifics
| 1 | |
| — | |
| — | |
| — | |
| — | |
| 124.9X30.5 | |
| Finished,Full,Interior Stair | |
| — | |
| — | |
| — | |
| Not in DB | |
| — | |
| — | |
| — | |
| — |
Tax History
| Year | Property Taxes |
|---|---|
| 2023 | $2,282 |
Contact Agent
Nearby Similar Homes
Nearby Sold Comparables
Contact Agent
Listing Provided By
Baird & Warner


