913 Van Buren Street, Near West Side, Chicago, Illinois 60607
$570,000
|
Sold
|
|
| Status: | Closed |
| Sqft: | 1,650 |
| Cost/Sqft: | $348 |
| Beds: | 2 |
| Baths: | 2 |
| Year Built: | — |
| Property Taxes: | $5,140 |
| Days On Market: | 1365 |
| Lot Size: | 0,00 |
Description
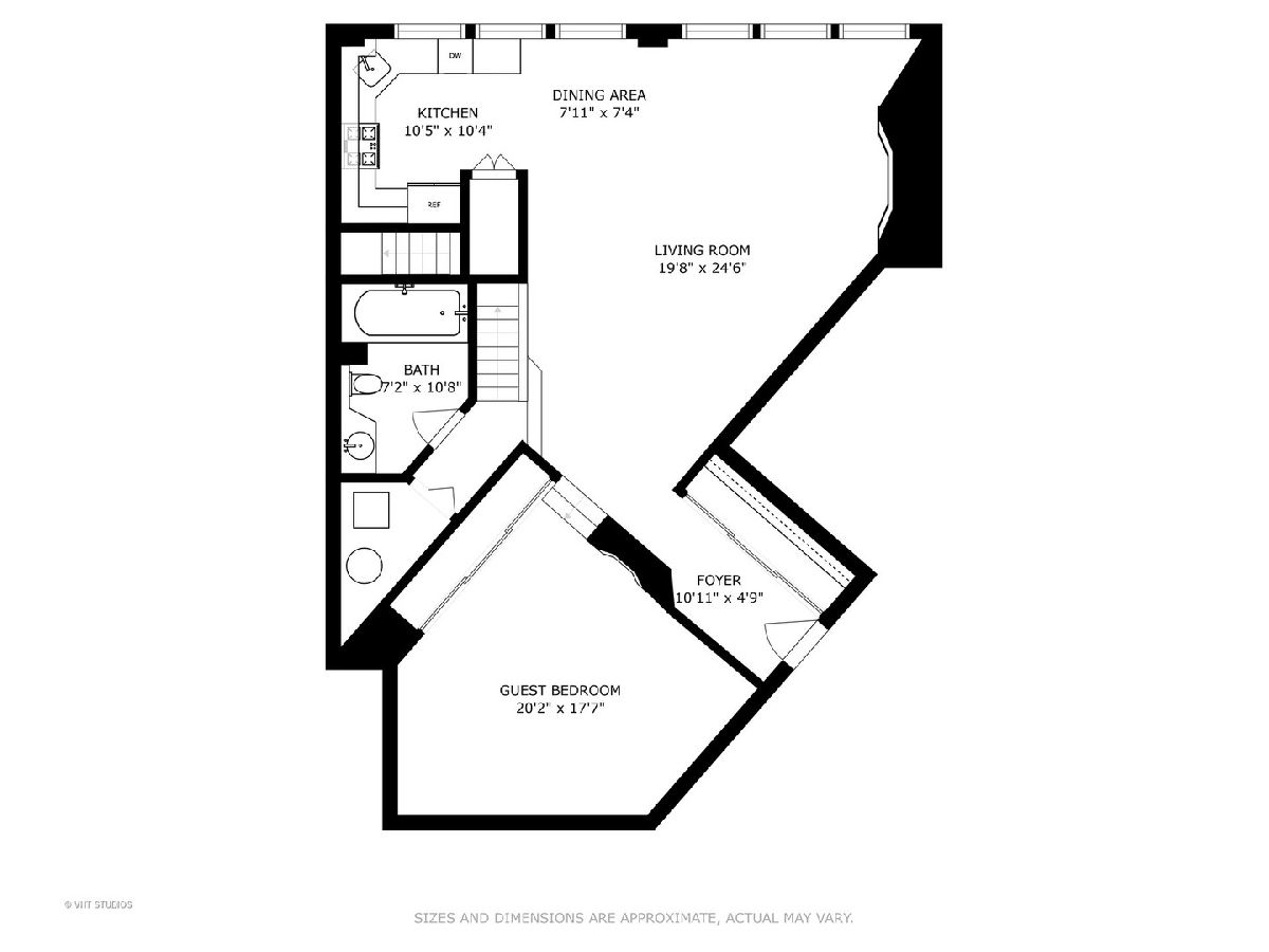
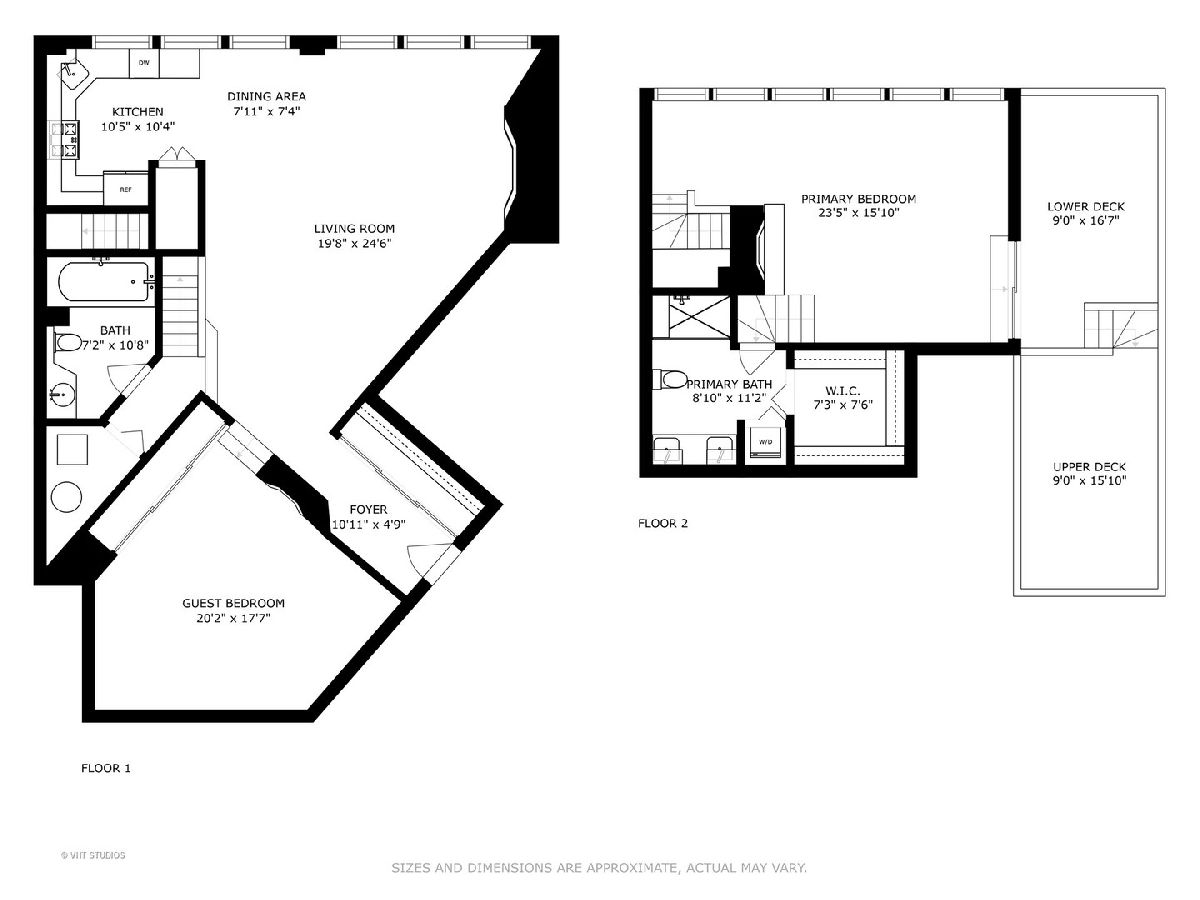
Superior West Loop duplex penthouse with private bi-level roof deck! Bright, west-facing turnkey loft with tall timber ceilings, exposed brick and tons of oversized windows. Entrance foyer leads to large living/dining room with wood-burning fireplace. Corner kitchen with maple cabinets, granite countertops, stainless appliances and separate pantry. Guest bedroom currently used as an office can also fit a pool table, plus triple closets and a second wood-burning fireplace. Generous guest bathroom has soaking tub. Upper level contains large primary suite, with another wall of windows, a third fireplace, an organized walk-in closet, and an updated marble/granite bathroom with walk-in shower and double sinks. Fantastic split-level composite deck has space for multiple furniture configurations and skyline views. Other features include dual-zoned HVAC, hardwood floors throughout, in-unit laundry, and great storage in crawlspace under primary bath. Outdoor parking space included - lot is immediately east of building. Very low taxes and assessments. Blue line L stop is one minute away. Easy access to 90/94/290, buses, Loop, Randolph Row, Bartelme dog park, Target etc. Solid building with great reserves.
Property Specifics
| Condos/Townhomes | |
| 7 | |
| — | |
| — | |
| — | |
| — | |
| No | |
| — |
| Cook | |
| — | |
| 431 / Monthly | |
| — | |
| — | |
| — | |
| 11441768 | |
| 17172360131083 |
Property History
| DATE: | EVENT: | PRICE: | SOURCE: |
|---|---|---|---|
| 14 May, 2012 | Sold | $390,000 | MRED MLS |
| 6 Apr, 2012 | Under contract | $425,000 | MRED MLS |
| 5 Mar, 2012 | Listed for sale | $425,000 | MRED MLS |
| 12 Sep, 2022 | Sold | $570,000 | MRED MLS |
| 30 Jul, 2022 | Under contract | $574,900 | MRED MLS |
| 21 Jun, 2022 | Listed for sale | $574,900 | MRED MLS |
Room Specifics
Total Bedrooms: 2
Bedrooms Above Ground: 2
Bedrooms Below Ground: 0
Dimensions: —
Floor Type: —
Full Bathrooms: 2
Bathroom Amenities: Double Sink,Double Shower,Soaking Tub
Bathroom in Basement: 0
Rooms: —
Basement Description: None
Other Specifics
| — | |
| — | |
| — | |
| — | |
| — | |
| COMMON | |
| — | |
| — | |
| — | |
| — | |
| Not in DB | |
| — | |
| — | |
| — | |
| — |
Tax History
| Year | Property Taxes |
|---|---|
| 2012 | $2,539 |
| 2022 | $5,140 |
Contact Agent
Nearby Similar Homes
Nearby Sold Comparables
Contact Agent
Listing Provided By
Baird & Warner


