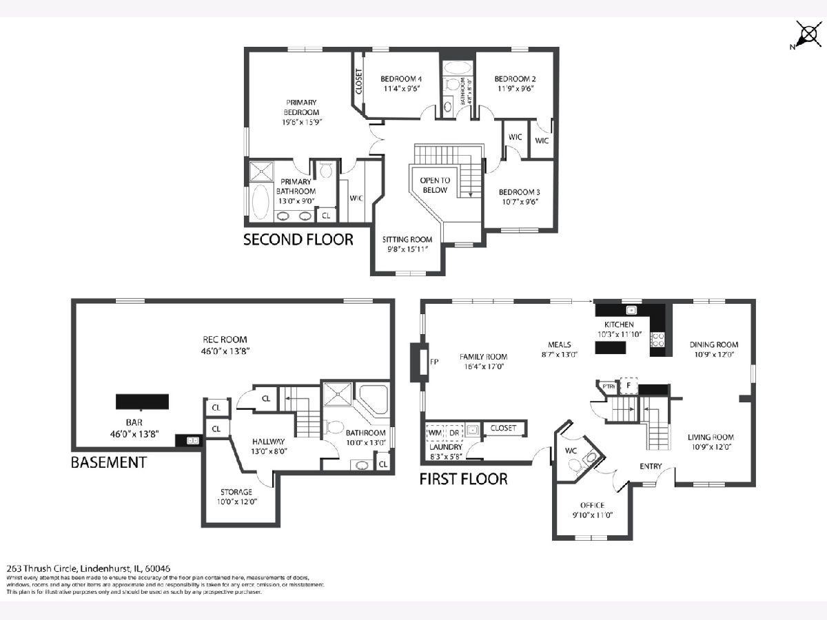
263 Thrush Circle, Lindenhurst, Illinois 60046
$490,000
Sold
|
|
Status: | Closed |
Sqft: | 2,900 |
Cost/Sqft: | $160 |
Beds: | 4 |
Baths: | 3 |
Year Built: | 1999 |
Property Taxes: | $11,778 |
Days On Market: | 118 |
Lot Size: | 0,35 |
Description
Welcome to 263 Thrush Circle - Timeless Elegance in Lindenhurst's Premier Country Place Neighborhood. Stunning 4-Bedroom, 3.5-Bath Home with Finished Basement & Premium Upgrades. Discover your dream home in the highly sought-after Country Place subdivision! This meticulously maintained residence offers the perfect blend of sophisticated design, modern amenities, and thoughtful functionality. Grand First Impressions: Step through the front door into a breathtaking 20-foot foyer illuminated by an elegant 8-foot crystal chandelier. The open-concept main level seamlessly connects formal dining, spacious family room, and bright kitchen - perfect for both daily living and entertaining guests. Key Features & Upgrades: Main Level Home Office - Ideal for remote work or quiet study. Recessed Lighting Throughout - Kitchen, family room, and all bedrooms. Ceiling Fans - Every bedroom plus family room for year-round comfort. Designer Lighting - Warm, curated fixtures create perfect ambiance. Upstairs Retreat: The second floor features a unique open loft space - a versatile bonus area perfect as a playroom, lounge, or creative studio. The master suite includes a brand-new, spacious walk-in closet that combines luxury with practical storage. Entertainer's Paradise: The backyard is truly spectacular, featuring: Beautifully crafted deck for outdoor dining, professionally landscaped grounds, lush, private greenery creating a serene oasis. Perfect for summer gatherings or peaceful morning coffee. Incredible Finished Basement: The English basement is a showstopper with: Dedicated children's play area, custom-built bar with professional lighting, full bathroom featuring luxurious jacuzzi tub, additional living and entertainment space. Prime Location Benefits: Located in the desirable Country Place community with easy access to: Neighborhood parks and playgrounds, scenic walking paths and trails, top-rated schools and community amenities, perfect balance of suburban tranquility and convenience. This exceptional home offers move-in ready luxury with every detail carefully considered. From the grand foyer to the finished basement retreat, 263 Thrush Circle represents the perfect opportunity to elevate your lifestyle. Schedule your private showing today and experience everything this remarkable home has to offer!
Property Specifics
Single Family | |
— | |
— | |
1999 | |
— | |
— | |
No | |
0.35 |
Lake | |
Country Place | |
290 / Annual | |
— | |
— | |
— | |
12382028 | |
06011160010000 |
Nearby Schools
NAME: | DISTRICT: | DISTANCE: | |
---|---|---|---|
Grade School
Millburn C C School |
24 | — | |
Middle School
Millburn C C School |
24 | Not in DB | |
High School
Lakes Community High School |
117 | Not in DB |
Property History
DATE: | EVENT: | PRICE: | SOURCE: |
---|---|---|---|
2 Feb, 2021 | Sold | $290,000 | MRED MLS |
12 Oct, 2020 | Under contract | $290,000 | MRED MLS |
— | Last price change | $299,000 | MRED MLS |
10 Jun, 2020 | Listed for sale | $299,000 | MRED MLS |
29 Jul, 2025 | Sold | $490,000 | MRED MLS |
10 Jun, 2025 | Under contract | $464,999 | MRED MLS |
5 Jun, 2025 | Listed for sale | $464,999 | MRED MLS |























































Room Specifics
Total Bedrooms: 4
Bedrooms Above Ground: 4
Bedrooms Below Ground: 0
Dimensions: —
Floor Type: —
Dimensions: —
Floor Type: —
Dimensions: —
Floor Type: —
Full Bathrooms: 3
Bathroom Amenities: Whirlpool,Separate Shower,Double Sink,Bidet,Soaking Tub
Bathroom in Basement: 1
Rooms: —
Basement Description: —
Other Specifics
2 | |
— | |
— | |
— | |
— | |
55X66X54X120X162 | |
Unfinished | |
— | |
— | |
— | |
Not in DB | |
— | |
— | |
— | |
— |
Tax History
Year | Property Taxes |
---|---|
2021 | $12,656 |
2025 | $11,778 |
Contact Agent
Nearby Similar Homes
Nearby Sold Comparables
Contact Agent
Listing Provided By
Redfin Corporation