2646 Crystal Street, West Town, Chicago, Illinois 60622
$575,000
|
Sold
|
|
| Status: | Closed |
| Sqft: | 0 |
| Cost/Sqft: | — |
| Beds: | 9 |
| Baths: | 0 |
| Year Built: | 1905 |
| Property Taxes: | $4,859 |
| Days On Market: | 1792 |
| Lot Size: | 0,06 |
Description
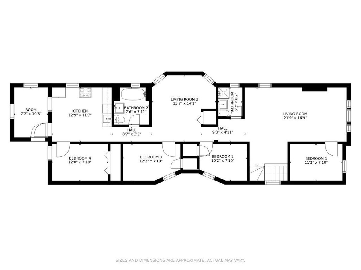
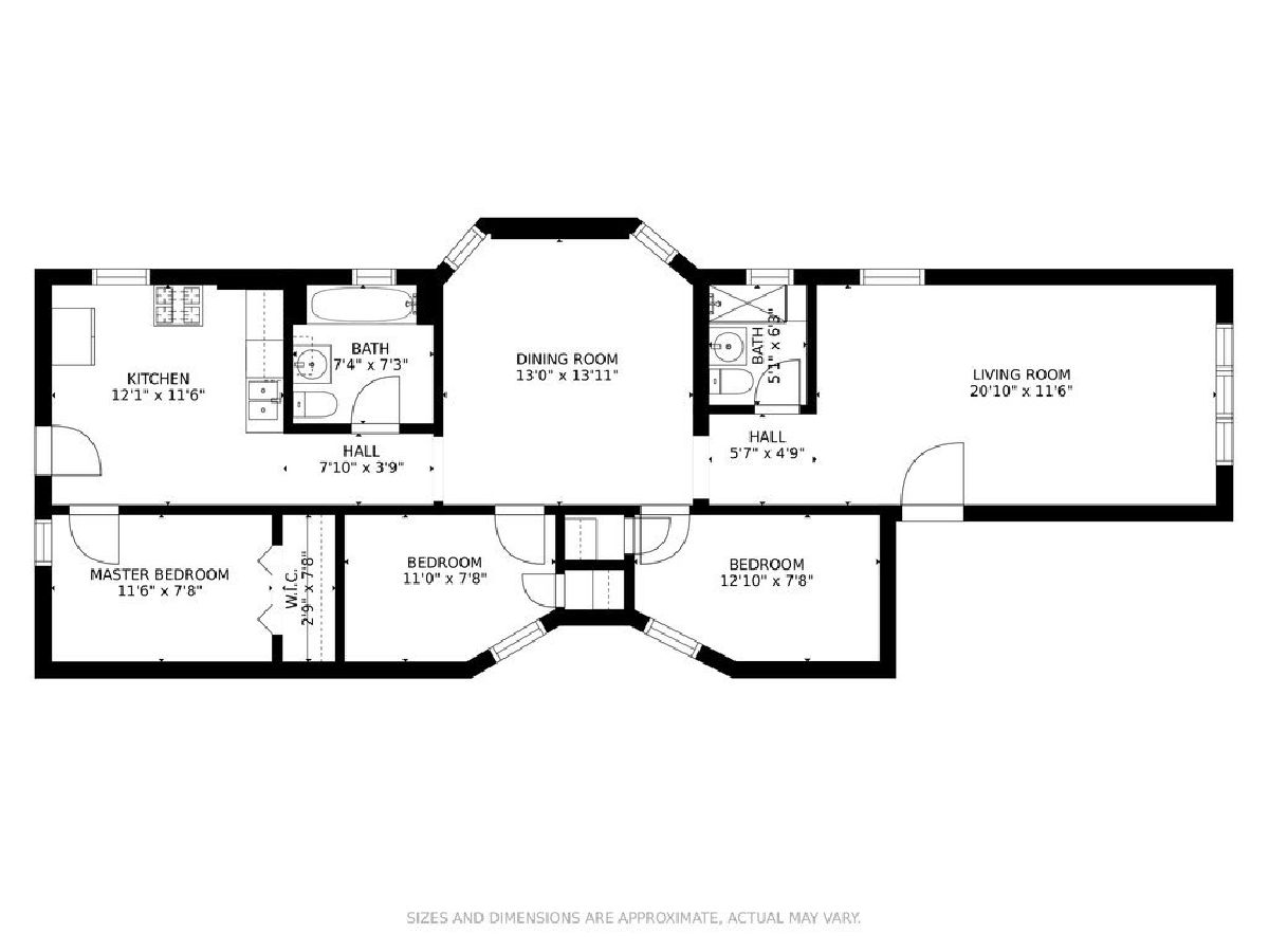
Wow... Massive Greystone with over 1400 Sq. Ft Apartments!!!! The structure of this property takes up most of the standard sized 25 x 121 lot. There are 3 spacious apartments (2 flat legal and non conforming Garden) Just look at the envelope of the building which measures out at 64.85 feet x 22.13 and can be converted to a dynamite single family home or a duplex down and rental above it, or simply keep as is and add a little value to maximize the rents. Settled in the heart of Humboldt Park. The 1st floor unit has 3 bedrooms, 2 full baths, Living room and dining room. 2nd floor unit has 4 bedrooms, 2 full baths, living room, dining room and the garden has 2 bedrooms and 1 full bath. This is a value add opportunity and is SOLD AS IS. MOST RECENT Improvements include ALL new windows, sidewalks, some updates to kitchens and baths, New furnaces, Stainless Steel Appliances, as well as an all new garden apartment. Broker nor owner represent the legality of the garden apartment. There are two vacant units previously rented for $2,000 ( 2nd floor) and $1450.00 first floor ( tenant occupied) and the garden apartment was last leased for $1250 There is a parking pad in the rear for off street parking!
Property Specifics
| Multi-unit | |
| — | |
| Greystone | |
| 1905 | |
| Full | |
| GREYSTONE | |
| No | |
| 0.06 |
| Cook | |
| — | |
| — / — | |
| — | |
| Lake Michigan | |
| Public Sewer | |
| 11092540 | |
| 16012250250000 |
Property History
| DATE: | EVENT: | PRICE: | SOURCE: |
|---|---|---|---|
| 19 Dec, 2017 | Sold | $345,000 | MRED MLS |
| 25 Nov, 2017 | Under contract | $399,000 | MRED MLS |
| — | Last price change | $425,000 | MRED MLS |
| 24 Oct, 2017 | Listed for sale | $425,000 | MRED MLS |
| 8 Jul, 2021 | Sold | $575,000 | MRED MLS |
| 4 Jun, 2021 | Under contract | $575,000 | MRED MLS |
| 21 May, 2021 | Listed for sale | $575,000 | MRED MLS |
Room Specifics
Total Bedrooms: 9
Bedrooms Above Ground: 9
Bedrooms Below Ground: 0
Dimensions: —
Floor Type: —
Dimensions: —
Floor Type: —
Dimensions: —
Floor Type: —
Dimensions: —
Floor Type: —
Dimensions: —
Floor Type: —
Dimensions: —
Floor Type: —
Dimensions: —
Floor Type: —
Dimensions: —
Floor Type: —
Full Bathrooms: 5
Bathroom Amenities: —
Bathroom in Basement: —
Rooms: —
Basement Description: Unfinished
Other Specifics
| — | |
| — | |
| — | |
| — | |
| — | |
| 25 X 121 | |
| — | |
| — | |
| — | |
| — | |
| Not in DB | |
| — | |
| — | |
| — | |
| — |
Tax History
| Year | Property Taxes |
|---|---|
| 2017 | $1,363 |
| 2021 | $4,859 |
Contact Agent
Nearby Similar Homes
Nearby Sold Comparables
Contact Agent
Listing Provided By
Compass


