3 Paradise Lane, White Heath, Illinois 61884
$374,900
Sold
|
|
Status: | Closed |
Sqft: | 3,323 |
Cost/Sqft: | $113 |
Beds: | 3 |
Baths: | 3 |
Year Built: | 1991 |
Property Taxes: | $6,477 |
Days On Market: | 1561 |
Lot Size: | 1,00 |
Description
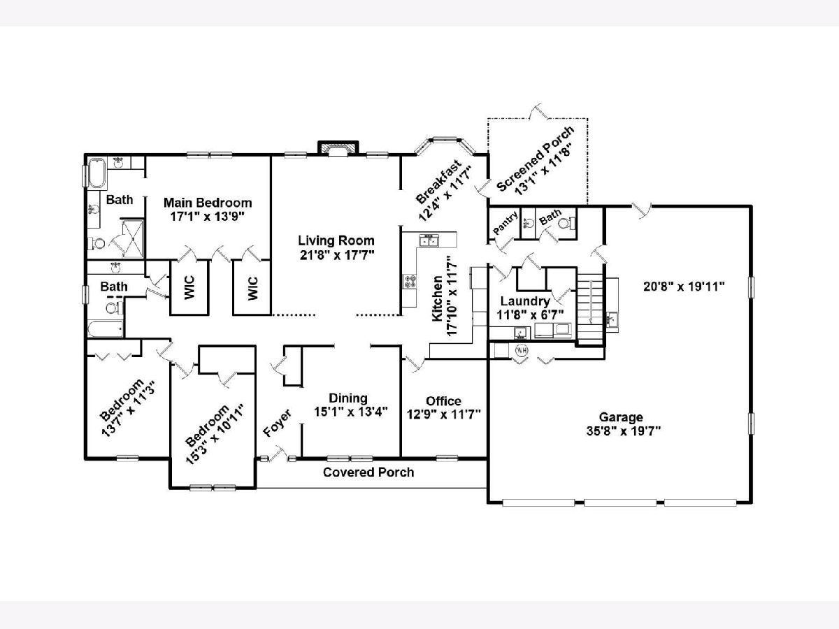
Welcome to your dream Home with an acre lot on pristine Paradise Lane. Conveniently located in White Heath (Monticello schools and a quick commute to Champaign). Quiet street, big trees and big yard welcome you into this warm 3 bed, 2.5 bath home. Big Living Room with fire place. High quality cabinets and new refrigerator in a the roomy kitchen. Large Master Suite with jetted tub, Tile shower, heated tile floors, with his and her vanities. 2 Other generous sized bedrooms as well on the first floor. Could easily be made into a 4 or 5 bedroom with home by converting large first floor office off the kitchen or adding a closet to one of the two bonus rooms upstairs. Spacious laundry room. 3.5 car garage that is EXTRA Deep - room for cars, trucks, toys and workshops. Over $35,000 in updates Updates: HVAC brand new in 2020, New fence, New Deck, New Water Filtration system, Tile Shower, kitchen backsplash, flooring. Backyard is great for entertaining. Screened in porch perfect for morning coffee. New Deck and separate Shed/Dog House top of a HUGE backyard. House backs up to Big Timber and trees. Great Home!!
Property Specifics
Single Family | |
— | |
Ranch | |
1991 | |
None | |
— | |
No | |
1 |
Piatt | |
Nature's Paradise | |
— / Not Applicable | |
None | |
Private Well | |
Septic-Private | |
11142670 | |
06001500017000 |
Nearby Schools
NAME: | DISTRICT: | DISTANCE: | |
---|---|---|---|
Grade School
White Heath Elementary |
25 | — | |
Middle School
Monticello Junior High School |
25 | Not in DB | |
High School
Monticello High School |
25 | Not in DB |
Property History
DATE: | EVENT: | PRICE: | SOURCE: |
---|---|---|---|
10 Aug, 2021 | Sold | $374,900 | MRED MLS |
3 Jul, 2021 | Under contract | $374,900 | MRED MLS |
1 Jul, 2021 | Listed for sale | $374,900 | MRED MLS |















































Room Specifics
Total Bedrooms: 3
Bedrooms Above Ground: 3
Bedrooms Below Ground: 0
Dimensions: —
Floor Type: Carpet
Dimensions: —
Floor Type: Carpet
Full Bathrooms: 3
Bathroom Amenities: —
Bathroom in Basement: —
Rooms: No additional rooms
Basement Description: Crawl
Other Specifics
3.5 | |
— | |
— | |
Deck, Porch Screened | |
— | |
150X290X150X292 | |
— | |
Full | |
First Floor Bedroom | |
Cooktop, Dishwasher, Disposal, Dryer, Microwave, Built-In Oven, Refrigerator, Washer | |
Not in DB | |
— | |
— | |
— | |
Wood Burning |
Tax History
Year | Property Taxes |
---|---|
2021 | $6,477 |
Contact Agent
Nearby Similar Homes
Nearby Sold Comparables
Contact Agent
Listing Provided By
EXP REALTY LLC-CHA