4918 Chester Avenue, Norridge, Illinois 60706
$515,000
Sold
|
|
Status: | Closed |
Sqft: | 2,300 |
Cost/Sqft: | $224 |
Beds: | 3 |
Baths: | 2 |
Year Built: | 1959 |
Property Taxes: | $9,315 |
Days On Market: | 189 |
Lot Size: | 0,00 |
Description
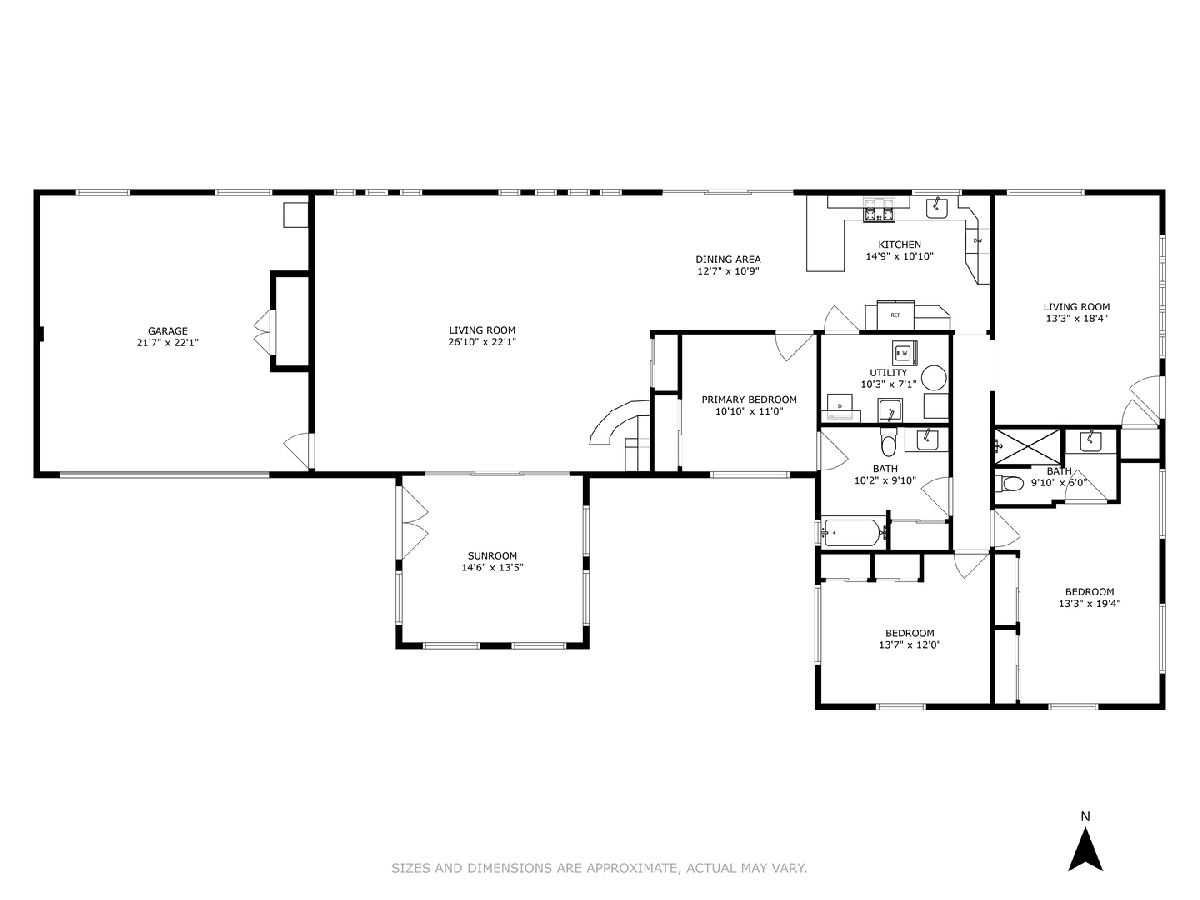
Beautifully renovated California ranch boasts tons of character with a unique vibe. This home sits within the Village of Norridge and has been updated to today's modern standards and stretches nearly the entire length of the 60x124' lot. With approximately 2300sf of livable space, all on one level, the open floor plan is ideal for entertaining. Large family room with exposed brick and gorgeous cathedral ceilings help separate itself from other ranch style homes. Sleek mini bar next to sliding glass doors that lead to a 4 season's room. Family room flows into dining room which leads to the beautiful kitchen finished with custom white cabinets, glass tile backsplash, stainless steel appliances and quartz countertops with breakfast bar overhang. Formal living room at front of the house with tall ceilings. Primary suite features great closet space with shower only en-suite. Other bedrooms are of good size and one of them connects to the guest bath. This home includes zoned heating and cooling + the mini split system for the 4 seasons room. The entire side driveway, patio and backyard leading to garage has received brand new concrete. A privacy fence was recently installed along with a motorized privacy gate. Large gazebo over patio is secured to the ground and offers shade and a great outdoor space to entertain. There is a gated and fenced-in dog run on the north side of the home. There is a 2.5 car attached garage with plenty of storage. Excellent location with close proximity to shopping, restaurants, O'Hare Airport, blue line train, and two major expressways, I-90 and I-294.
Property Specifics
Single Family | |
— | |
— | |
1959 | |
— | |
CONTEMPORARY/CALIFORNIA RA | |
No | |
— |
Cook | |
— | |
0 / Not Applicable | |
— | |
— | |
— | |
12323060 | |
12113030310000 |
Nearby Schools
NAME: | DISTRICT: | DISTANCE: | |
---|---|---|---|
Grade School
John V Leigh Elementary School |
80 | — | |
Middle School
James Giles Elementary School |
80 | Not in DB | |
High School
Ridgewood Comm High School |
234 | Not in DB |
Property History
DATE: | EVENT: | PRICE: | SOURCE: |
---|---|---|---|
7 Aug, 2019 | Sold | $250,175 | MRED MLS |
19 Jun, 2019 | Under contract | $249,000 | MRED MLS |
12 Jun, 2019 | Listed for sale | $249,000 | MRED MLS |
15 Jun, 2020 | Sold | $409,900 | MRED MLS |
4 May, 2020 | Under contract | $409,900 | MRED MLS |
1 May, 2020 | Listed for sale | $409,900 | MRED MLS |
1 May, 2025 | Sold | $515,000 | MRED MLS |
1 Apr, 2025 | Under contract | $515,000 | MRED MLS |
28 Mar, 2025 | Listed for sale | $515,000 | MRED MLS |







































Room Specifics
Total Bedrooms: 3
Bedrooms Above Ground: 3
Bedrooms Below Ground: 0
Dimensions: —
Floor Type: —
Dimensions: —
Floor Type: —
Full Bathrooms: 2
Bathroom Amenities: Separate Shower,Double Sink,Soaking Tub
Bathroom in Basement: 0
Rooms: —
Basement Description: —
Other Specifics
2 | |
— | |
— | |
— | |
— | |
60 X 124 | |
— | |
— | |
— | |
— | |
Not in DB | |
— | |
— | |
— | |
— |
Tax History
Year | Property Taxes |
---|---|
2019 | $2,717 |
2020 | $2,837 |
2025 | $9,315 |
Contact Agent
Nearby Similar Homes
Nearby Sold Comparables
Contact Agent
Listing Provided By
Jameson Sotheby's Intl Realty