537 Greenleaf Avenue, Glencoe, Illinois 60022
$1,850,000
Sold
|
|
Status: | Closed |
Sqft: | 0 |
Cost/Sqft: | — |
Beds: | 5 |
Baths: | 5 |
Year Built: | — |
Property Taxes: | $25,259 |
Days On Market: | 1386 |
Lot Size: | 0,51 |
Description
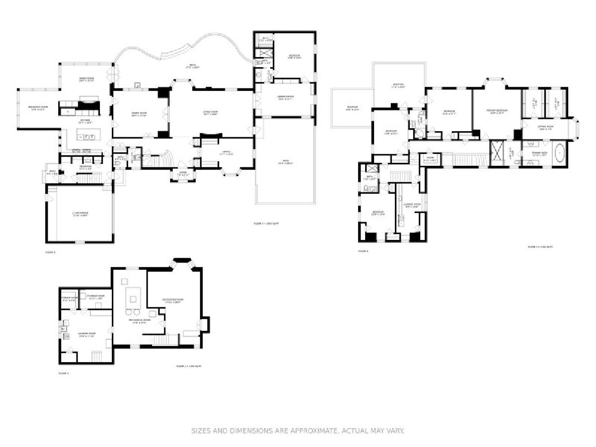
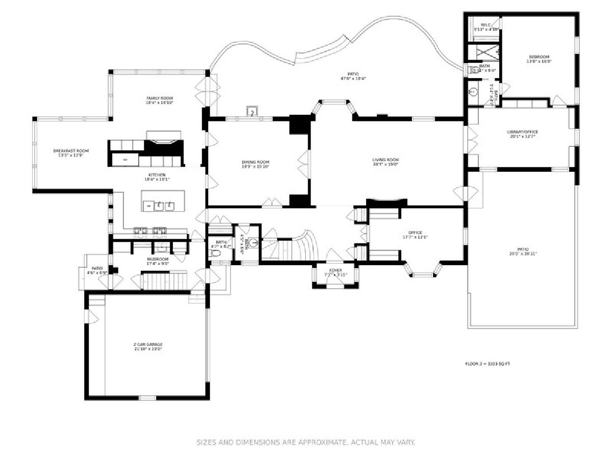
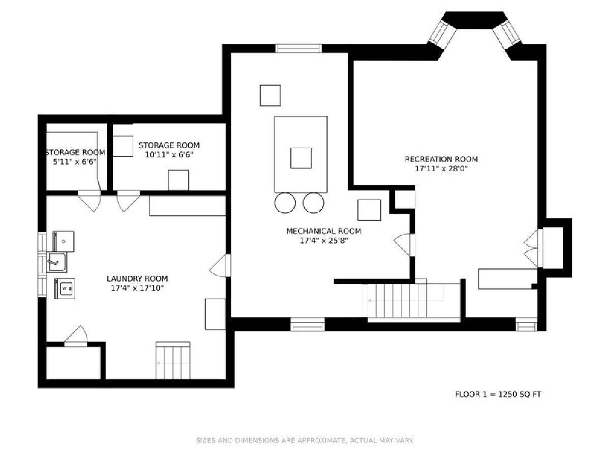
Located on East Glencoe's most ideal street, this graciously scaled 5 bedroom 4.1 bath light-filled home combines classic details and modern amenities. With a major renovation in the early 2000's & many more recent updates, it feels like new. A wonderful flow for entertaining both inside and out. First floor features a welcoming entrance hall, hardwood flooring throughout, beautiful living room with custom fireplace, family room with custom fireplace, large dining room, chef's eat-in kitchen with an over-sized island and high-end SS appliances. Enjoy entertaining on your extraordinary southern exposure blue stone patio off of the family room and kitchen. A beautiful 1st floor junior master suite, custom wood paneled library, an office, mudroom off the 2-car attached garage and an elegant powder room. The second floor with 4 bedrooms and hardwood flooring offers an expansive primary suite with a luxurious bathroom, a fireplace and his and hers walk-in closets. 3 other spacious bedrooms one with its own bathroom and the other sharing a Jack & Jill bath, huge laundry room with lots of cabinetry, shelving a sink and natural light and roof top decks complete this floor. Partially finished lower level includes a rec room, lots of storage and an additional laundry room. Well known landscape architect Craig Bermann designed the fabulous half acre property which includes a fenced in backyard with a multitude of perennials and underground sprinklers. Even the driveway has an elegant design with crushed bluestone and brick pavers. You can just feel it's superb when an exceptional home is built to stand the test of time and radiates bright light and a high-end level of quality. Pristine in every way. Move right in and enjoy living one of Glencoe's prettiest streets just steps away from town, the beach, parks, public transportation, award-winning schools and the bike trail~it doesn't get much better than this! Showings start 1/7/2022
Property Specifics
Single Family | |
— | |
— | |
— | |
— | |
— | |
No | |
0.51 |
Cook | |
— | |
— / Not Applicable | |
— | |
— | |
— | |
11303868 | |
05081020050000 |
Nearby Schools
NAME: | DISTRICT: | DISTANCE: | |
---|---|---|---|
Grade School
South Elementary School |
35 | — | |
Middle School
Central School |
35 | Not in DB | |
High School
New Trier Twp H.s. Northfield/wi |
203 | Not in DB |
Property History
DATE: | EVENT: | PRICE: | SOURCE: |
---|---|---|---|
1 Apr, 2022 | Sold | $1,850,000 | MRED MLS |
8 Jan, 2022 | Under contract | $1,749,000 | MRED MLS |
6 Jan, 2022 | Listed for sale | $1,749,000 | MRED MLS |



































Room Specifics
Total Bedrooms: 5
Bedrooms Above Ground: 5
Bedrooms Below Ground: 0
Dimensions: —
Floor Type: —
Dimensions: —
Floor Type: —
Dimensions: —
Floor Type: —
Dimensions: —
Floor Type: —
Full Bathrooms: 5
Bathroom Amenities: —
Bathroom in Basement: 0
Rooms: —
Basement Description: Partially Finished
Other Specifics
2 | |
— | |
— | |
— | |
— | |
75 X 210 | |
— | |
— | |
— | |
— | |
Not in DB | |
— | |
— | |
— | |
— |
Tax History
Year | Property Taxes |
---|---|
2022 | $25,259 |
Contact Agent
Nearby Similar Homes
Nearby Sold Comparables
Contact Agent
Listing Provided By
@properties Christie's International Real Estate