5850 Fairfield Avenue, West Ridge, Chicago, Illinois 60659
$407,000
|
Sold
|
|
| Status: | Closed |
| Sqft: | 1,206 |
| Cost/Sqft: | $348 |
| Beds: | 2 |
| Baths: | 1 |
| Year Built: | 1926 |
| Property Taxes: | $1,512 |
| Days On Market: | 1366 |
| Lot Size: | 0,09 |
Description
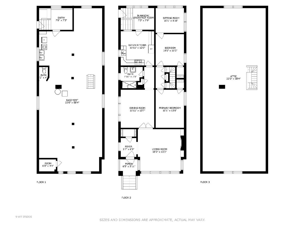
YOU can be the second owner of this magical place! That wonderful, rare find...a City of Chicago certified bungalow with INCREDIBLE woodwork and character. This home has been owned, occupied, and adored by the same family since it was built 96 years ago! The foyer is welcoming, with enough room for a small bench to be seated and remove your shoes. Glowing, perfect woodwork, a decorative fireplace, cove moulding, and a French door between the living room and dining room add to the gracious feeling you get the moment you enter. Two bedrooms, plus the original den/sitting room adjacent to the back bedroom. Bath updated 2005, kitchen has lovely wood cabinets, plus space for a small table. Sunny, cozy breakfast area, with steps leading down to the yard. Full, unfinished attic. Lovingly maintained, this home is a treasure. Windows replaced...with wood windows! Top notch throughout. The basement is full, and unfinished, with both interior and exterior steps. Pretty yard with patio...tranquility all around. Extra commode in basement. 50 gal water heater, 2017. Garage has no electricity, conveyed 'as is'. Immaculate, perfect, classic. Please view the floor plans, and see the size of the private sitting/room/office...an amazing little spot.
Property Specifics
| Single Family | |
| — | |
| — | |
| 1926 | |
| — | |
| — | |
| No | |
| 0.09 |
| Cook | |
| — | |
| — / Not Applicable | |
| — | |
| — | |
| — | |
| 11483251 | |
| 13014080240000 |
Nearby Schools
| NAME: | DISTRICT: | DISTANCE: | |
|---|---|---|---|
|
Grade School
Jamieson Elementary School |
299 | — | |
|
High School
Mather High School |
299 | Not in DB | |
Property History
| DATE: | EVENT: | PRICE: | SOURCE: |
|---|---|---|---|
| 27 Sep, 2022 | Sold | $407,000 | MRED MLS |
| 12 Aug, 2022 | Under contract | $420,000 | MRED MLS |
| 4 Aug, 2022 | Listed for sale | $420,000 | MRED MLS |
Room Specifics
Total Bedrooms: 2
Bedrooms Above Ground: 2
Bedrooms Below Ground: 0
Dimensions: —
Floor Type: —
Full Bathrooms: 1
Bathroom Amenities: —
Bathroom in Basement: 0
Rooms: —
Basement Description: Unfinished
Other Specifics
| 1 | |
| — | |
| Off Alley | |
| — | |
| — | |
| 30X124 | |
| Full,Unfinished | |
| — | |
| — | |
| — | |
| Not in DB | |
| — | |
| — | |
| — | |
| — |
Tax History
| Year | Property Taxes |
|---|---|
| 2022 | $1,512 |
Contact Agent
Nearby Similar Homes
Nearby Sold Comparables
Contact Agent
Listing Provided By
Baird & Warner


