650 Morgan Street, West Town, Chicago, Illinois 60642
$669,000
|
Sold
|
|
| Status: | Closed |
| Sqft: | 2,130 |
| Cost/Sqft: | $340 |
| Beds: | 4 |
| Baths: | 2 |
| Year Built: | 2018 |
| Property Taxes: | $16,191 |
| Days On Market: | 1072 |
| Lot Size: | 0,00 |
Description
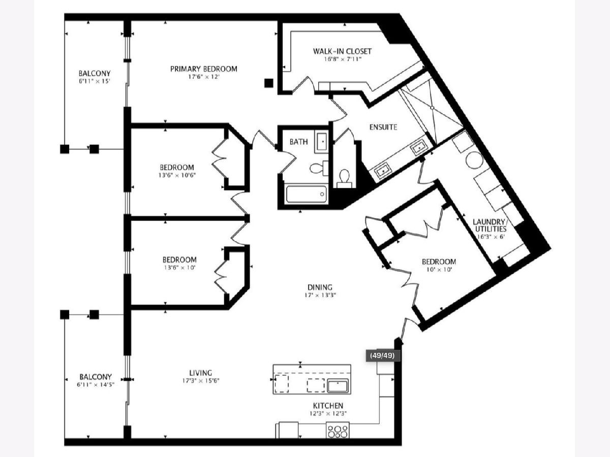
Welcome home to this newer (2019) construction 4 Bedroom/2 Bath open-concept River West condo in the Caden James elevator building. With 2,130 sq. ft., you'll enjoy large rooms with extensive natural light, striking high-end finishes, hardwood floors throughout, 9' ceilings, top of the line appliances, lots of closet space and two large private balconies. In the kitchen there's Florense cabinetry, LED lighting, separate Electrolux built-in refrigerator + freezer, Wolf gas cooktop, microwave, Bosch dishwasher and Calacatta quartz counters, backsplash and waterfall island. The primary suite offers an oversized bedroom featuring ceiling fan and private balcony with skyline views. The ensuite, spa-like bath has heated floors, dual vanities, Calacatta quartz counters and generous under-sink storage. Unwind in the large walk-in shower with rainfall head and full body sprays, built-in quartz bench and frameless glass door. A separate commode ensures privacy, while the organized, large walk-in closet provides excellent dressing room space. The 2nd bedroom offers French doors, so it can be used either as a bedroom, den, dining room, home office or media room. The 3rd and 4th bedrooms feature floor-to-ceiling windows and large organized closets. An extra-large laundry room w/upgraded washer + dryer and custom built-ins complete this delightful home. Includes heated garage parking for one car, individual storage and bike storage. Developed by Chicago-based The Domain Group & Vari Architects, the Caden James boasts ButterflyMX smart intercom system w/security cameras throughout the building's common areas. Situated in the heart of River West, your home is within walking distance to restaurants, convenience shops, grocery, the CTA, in addition to all the fun and excitement that Fulton Market, West Loop & River North offers. Easy access to I90/I94. Located in Ogden International School District.
Property Specifics
| Condos/Townhomes | |
| 6 | |
| — | |
| 2018 | |
| — | |
| — | |
| No | |
| — |
| Cook | |
| — | |
| 505 / Monthly | |
| — | |
| — | |
| — | |
| 11788924 | |
| 17082190441009 |
Property History
| DATE: | EVENT: | PRICE: | SOURCE: |
|---|---|---|---|
| 1 May, 2019 | Sold | $838,500 | MRED MLS |
| 25 Feb, 2019 | Under contract | $849,900 | MRED MLS |
| 18 Feb, 2019 | Listed for sale | $849,900 | MRED MLS |
| 15 Dec, 2023 | Sold | $669,000 | MRED MLS |
| 4 Nov, 2023 | Under contract | $724,900 | MRED MLS |
| — | Last price change | $749,000 | MRED MLS |
| 22 May, 2023 | Listed for sale | $849,000 | MRED MLS |
Room Specifics
Total Bedrooms: 4
Bedrooms Above Ground: 4
Bedrooms Below Ground: 0
Dimensions: —
Floor Type: —
Dimensions: —
Floor Type: —
Dimensions: —
Floor Type: —
Full Bathrooms: 2
Bathroom Amenities: Separate Shower,Double Sink,Full Body Spray Shower,Soaking Tub
Bathroom in Basement: 0
Rooms: —
Basement Description: None
Other Specifics
| 1 | |
| — | |
| Concrete | |
| — | |
| — | |
| COMMON | |
| — | |
| — | |
| — | |
| — | |
| Not in DB | |
| — | |
| — | |
| — | |
| — |
Tax History
| Year | Property Taxes |
|---|---|
| 2023 | $16,191 |
Contact Agent
Nearby Similar Homes
Nearby Sold Comparables
Contact Agent
Listing Provided By
Baird & Warner


