1316 Carol Lane, Naperville, Illinois 60565
$525,000
|
Sold
|
|
| Status: | Closed |
| Sqft: | 2,118 |
| Cost/Sqft: | $222 |
| Beds: | 4 |
| Baths: | 2 |
| Year Built: | 1977 |
| Property Taxes: | $7,463 |
| Days On Market: | 381 |
| Lot Size: | 0,23 |
Description
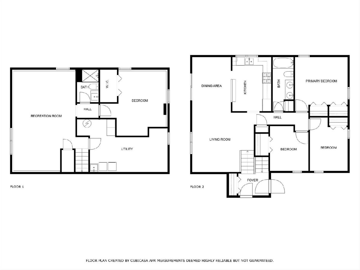
*MULTIPLE OFFERS- HIGHEST AND BEST DUE SUNDAY, 5/18 BY 3PM* Charming Raised Ranch with a Dreamy 3 Seasons Room! This inviting home is perfect for first-time buyers or anyone looking to downsize without sacrificing space. The standout feature? A beautifully updated 3 seasons room just off the garage-surrounded by sliders, it's flooded with natural light and offers the perfect retreat or entertaining space year-round. Inside, the main level boasts hardwood floors, vaulted ceilings, oversized windows and an updated kitchen with quartz countertops, stainless steel appliances, breakfast bar, and pantry. The open dining/living area connects seamlessly to a sunlit deck overlooking a private, tree-lined backyard with a built-in firepit. The primary bedroom sits at the end of the hall and features dual closets. Two additional bedrooms and a spacious full bath finish off the main level. Downstairs, enjoy a large family room with beadboard, play area, renovated full bath, and a private 4th bedroom ideal for guests or a home office. A generous laundry room and storage area round out the lower level. Tucked behind a newer vinyl privacy fence, the big, open backyard and 3 seasons room create an unbeatable combo for indoor-outdoor living! The 2 car garage has extra space for additional storage. This home is located in the desirable Bay Colony neighborhood which sits within walking distance to Maplebrook Elementary and Lincoln Junior High. Option to join Maplebrook 2 Swim & Racquet Club. Very social neighborhood with year round events and located just minutes from Downtown Naperville!
Property Specifics
| Single Family | |
| — | |
| — | |
| 1977 | |
| — | |
| — | |
| No | |
| 0.23 |
| — | |
| Bay Colony | |
| 0 / Not Applicable | |
| — | |
| — | |
| — | |
| 12356752 | |
| 0830300012 |
Nearby Schools
| NAME: | DISTRICT: | DISTANCE: | |
|---|---|---|---|
|
Grade School
Maplebrook Elementary School |
203 | — | |
|
Middle School
Lincoln Junior High School |
203 | Not in DB | |
|
High School
Naperville Central High School |
203 | Not in DB | |
Property History
| DATE: | EVENT: | PRICE: | SOURCE: |
|---|---|---|---|
| 13 May, 2009 | Sold | $175,000 | MRED MLS |
| 8 Apr, 2009 | Under contract | $194,900 | MRED MLS |
| — | Last price change | $224,900 | MRED MLS |
| 7 Mar, 2009 | Listed for sale | $224,900 | MRED MLS |
| 30 Nov, 2009 | Sold | $275,000 | MRED MLS |
| 18 Oct, 2009 | Under contract | $289,900 | MRED MLS |
| 7 Oct, 2009 | Listed for sale | $289,900 | MRED MLS |
| 6 May, 2013 | Sold | $275,000 | MRED MLS |
| 6 Apr, 2013 | Under contract | $275,000 | MRED MLS |
| 3 Apr, 2013 | Listed for sale | $275,000 | MRED MLS |
| 30 Jun, 2025 | Sold | $525,000 | MRED MLS |
| 19 May, 2025 | Under contract | $470,000 | MRED MLS |
| 15 May, 2025 | Listed for sale | $470,000 | MRED MLS |
Room Specifics
Total Bedrooms: 4
Bedrooms Above Ground: 4
Bedrooms Below Ground: 0
Dimensions: —
Floor Type: —
Dimensions: —
Floor Type: —
Dimensions: —
Floor Type: —
Full Bathrooms: 2
Bathroom Amenities: —
Bathroom in Basement: 1
Rooms: —
Basement Description: —
Other Specifics
| 2 | |
| — | |
| — | |
| — | |
| — | |
| 80X135 | |
| — | |
| — | |
| — | |
| — | |
| Not in DB | |
| — | |
| — | |
| — | |
| — |
Tax History
| Year | Property Taxes |
|---|---|
| 2009 | $4,945 |
| 2009 | $5,183 |
| 2013 | $5,539 |
| 2025 | $7,463 |
Contact Agent
Nearby Similar Homes
Nearby Sold Comparables
Contact Agent
Listing Provided By
Baird & Warner


