4914 Warwick Avenue, Portage Park, Chicago, Illinois 60641
$355,000
|
Sold
|
|
| Status: | Closed |
| Sqft: | 1,700 |
| Cost/Sqft: | $205 |
| Beds: | 3 |
| Baths: | 2 |
| Year Built: | 1946 |
| Property Taxes: | $7,288 |
| Days On Market: | 1724 |
| Lot Size: | 0,10 |
Description
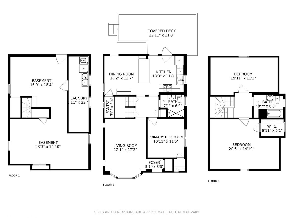
Charming three bedroom, two bath all-brick home located in the desirable Portage Park neighborhood! Walk into this freshly painted home and be welcomed to a spacious living room that features a large bay window (providing tons of natural sunlight), built in bookshelves and nicely finished hardwood floors. The kitchen offers tons of cabinet and countertop space, a large walk-in pantry and is open, overlooking the dining room that could easily fit a dining table for 8. Perfect for hosting family holidays. Additionally, on the main level, you will find a full bathroom and bedroom which can also be used as an office. The second floor offers two spacious bedrooms with vaulted ceilings and a full bathroom with the master bedroom featuring a walk-in closet. The lower level is partially finished and is the entire size of the home. It features two living spaces, including potential for a bedroom, a large storage area, separate laundry room with door and a walk-out basement door. Situated on an extra-wide, 34-foot lot, the backyard is truly a peaceful oasis with plenty of room to garden and entertain. The freshly painted deck offers a roof which provides great shade and is perfect for those rainy days or working from home outside. This home truly has it all - including a 2.5 car garage and is within walking distance to the Grayland Metra station. Home is being sold as-is.
Property Specifics
| Single Family | |
| — | |
| English | |
| 1946 | |
| Full | |
| — | |
| No | |
| 0.1 |
| Cook | |
| — | |
| 0 / Not Applicable | |
| None | |
| Lake Michigan | |
| Sewer-Storm | |
| 11161866 | |
| 13212180340000 |
Nearby Schools
| NAME: | DISTRICT: | DISTANCE: | |
|---|---|---|---|
|
Grade School
Gray Elementary School |
299 | — | |
Property History
| DATE: | EVENT: | PRICE: | SOURCE: |
|---|---|---|---|
| 27 Jul, 2009 | Sold | $268,000 | MRED MLS |
| 16 Jun, 2009 | Under contract | $279,500 | MRED MLS |
| 18 May, 2009 | Listed for sale | $279,500 | MRED MLS |
| 20 Jul, 2015 | Sold | $295,000 | MRED MLS |
| 24 May, 2015 | Under contract | $300,000 | MRED MLS |
| 19 May, 2015 | Listed for sale | $300,000 | MRED MLS |
| 16 Sep, 2021 | Sold | $355,000 | MRED MLS |
| 9 Aug, 2021 | Under contract | $349,000 | MRED MLS |
| 5 Aug, 2021 | Listed for sale | $349,000 | MRED MLS |
Room Specifics
Total Bedrooms: 3
Bedrooms Above Ground: 3
Bedrooms Below Ground: 0
Dimensions: —
Floor Type: Carpet
Dimensions: —
Floor Type: Hardwood
Full Bathrooms: 2
Bathroom Amenities: —
Bathroom in Basement: 0
Rooms: Deck,Recreation Room
Basement Description: Partially Finished,Exterior Access,Rec/Family Area,Sleeping Area,Storage Space
Other Specifics
| 2.5 | |
| Concrete Perimeter | |
| — | |
| Deck, Stamped Concrete Patio | |
| Fenced Yard | |
| 34 X 124 | |
| — | |
| None | |
| Vaulted/Cathedral Ceilings, Skylight(s), Hardwood Floors, First Floor Bedroom, First Floor Full Bath, Walk-In Closet(s), Bookcases, Open Floorplan | |
| Range, Microwave, Dishwasher, Refrigerator, Washer, Dryer | |
| Not in DB | |
| Curbs, Sidewalks, Street Lights, Street Paved | |
| — | |
| — | |
| — |
Tax History
| Year | Property Taxes |
|---|---|
| 2009 | $1,696 |
| 2015 | $4,495 |
| 2021 | $7,288 |
Contact Agent
Nearby Similar Homes
Nearby Sold Comparables
Contact Agent
Listing Provided By
@properties


