505 Roosevelt Road, Wheaton, Illinois 60187
$379,000
|
Sold
|
|
| Status: | Closed |
| Sqft: | 1,858 |
| Cost/Sqft: | $204 |
| Beds: | 3 |
| Baths: | 2 |
| Year Built: | 1960 |
| Property Taxes: | $7,382 |
| Days On Market: | 885 |
| Lot Size: | 0,25 |
Description
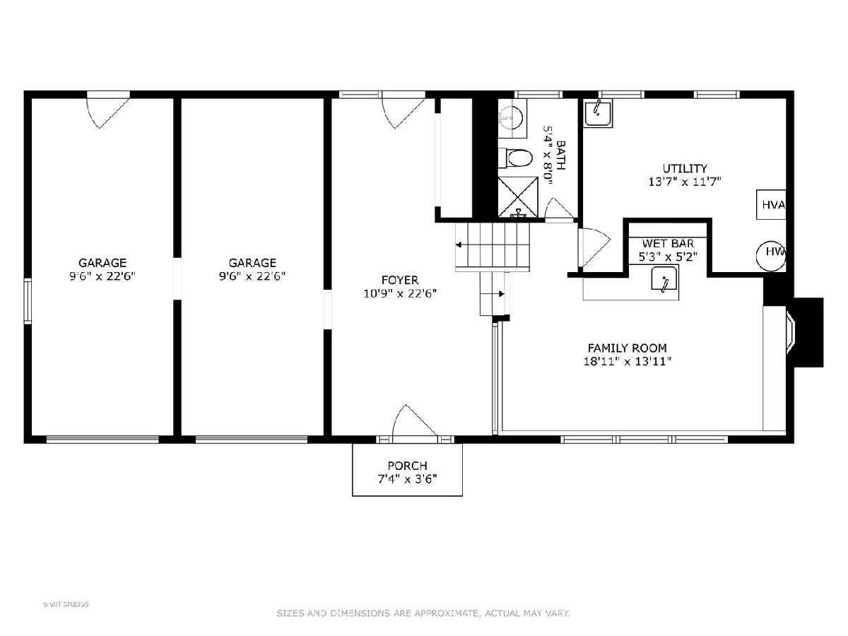
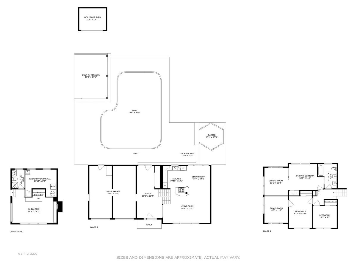
Welcome to the Fabulous Wheaton Lifestyle! This brick Quad-level home is MOVE-IN ready and offers an abundance of vacation like features. Step inside to discover an open concept kitchen (white shaker cabinets, quartz countertops & ss appliances) with an island, overlooking the living room and dining room. There are three bedrooms with hardwood floors. The possible 4th bedroom and 5th bedrooms are carpeted. There are ceiling fans in all the bedrooms. Windows on the upper floors are new. En suite has a shared double vanity sink in the bathroom. It also has a spectacular view of the swimming pool and the backyard amenities. These views can also be enjoyed from the kitchen and dining area plus the office area on the main floor. Lower level has a laundry/utility room, a family room with a full bathroom, gas fireplace & a wet bar with a refrigerator. Lovely home sits back from the street with an attached 2 car garage and plenty more room for extra parking spaces in the wide & long concrete driveway. Very private deep fenced backyard oasis features a concrete in ground swimming pool (pool has a new pump & filter), pond, fountain, gazebo, pergola, hot tub hookup, workshop shed & a storage shed. Walking distance to Lowell Elementary School, Marianos, Central Athletic Complex, Starbucks, Metra Station, parks, downtown Wheaton, restaurants & shopping. SELLER WILLING TO PAY FOR BUYER'S CLOSING COSTS!
Property Specifics
| Single Family | |
| — | |
| — | |
| 1960 | |
| — | |
| — | |
| No | |
| 0.25 |
| Du Page | |
| — | |
| 0 / Not Applicable | |
| — | |
| — | |
| — | |
| 11942900 | |
| 0516422022 |
Nearby Schools
| NAME: | DISTRICT: | DISTANCE: | |
|---|---|---|---|
|
Grade School
Lowell Elementary School |
200 | — | |
|
Middle School
Franklin Middle School |
200 | Not in DB | |
|
High School
Wheaton North High School |
200 | Not in DB | |
Property History
| DATE: | EVENT: | PRICE: | SOURCE: |
|---|---|---|---|
| 5 Apr, 2023 | Sold | $280,000 | MRED MLS |
| 16 Feb, 2023 | Under contract | $299,900 | MRED MLS |
| 11 Jan, 2023 | Listed for sale | $299,900 | MRED MLS |
| 2 Jan, 2024 | Sold | $379,000 | MRED MLS |
| 15 Dec, 2023 | Under contract | $378,900 | MRED MLS |
| — | Last price change | $387,900 | MRED MLS |
| 6 Dec, 2023 | Listed for sale | $387,900 | MRED MLS |
Room Specifics
Total Bedrooms: 3
Bedrooms Above Ground: 3
Bedrooms Below Ground: 0
Dimensions: —
Floor Type: —
Dimensions: —
Floor Type: —
Full Bathrooms: 2
Bathroom Amenities: Double Sink
Bathroom in Basement: 1
Rooms: —
Basement Description: Finished
Other Specifics
| 2 | |
| — | |
| Concrete | |
| — | |
| — | |
| 66X184 | |
| — | |
| — | |
| — | |
| — | |
| Not in DB | |
| — | |
| — | |
| — | |
| — |
Tax History
| Year | Property Taxes |
|---|---|
| 2023 | $7,246 |
| 2024 | $7,382 |
Contact Agent
Nearby Similar Homes
Nearby Sold Comparables
Contact Agent
Listing Provided By
American International Realty


