6848 Oriole Avenue, Edison Park, Chicago, Illinois 60631
$865,000
Sold
|
|
Status: | Closed |
Sqft: | 3,400 |
Cost/Sqft: | $257 |
Beds: | 5 |
Baths: | 3 |
Year Built: | 1923 |
Property Taxes: | $8,851 |
Days On Market: | 85 |
Lot Size: | 0,10 |
Description
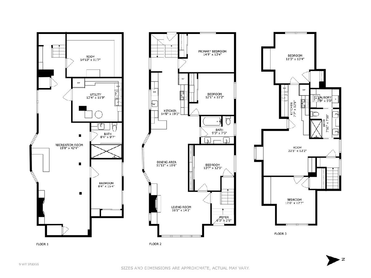
Classic brick bungalow in the heart of Edison Park, masterfully renovated 'from the studs in'. This home is perfect for a single family residence, intergenerational living, or as a duplex, as it has two separate interior entrances off of the foyer, and separate gas/electric meters. Every detail, both structurally and functionally has been considered. 3400+ square feet of finished space has been creatively arranged to meet the needs of any owner - the main floor includes 3 bedrooms, a full bathroom, and a beautiful open concept living area/kitchen and 9' ceilings / crown moulding; the second floor has two bedrooms, a gorgeous bath, full kitchen, and its own laundry room; the finished basement includes wonderful living space with a gas fireplace, bar area, flex room, full bath with 8' walk-in shower with rainfall showerhead, a large laundry room, and an incredibly organized home workshop. The newer (2020) 2.5 car garage has plentiful overhead storage, and is 'clean as a whistle.' It's tough to know where to start with the exceptional quality/finishes of this home, so there is a comprehensive 'feature sheet' available, but let's start with some highlights: red oak hardwood floors throughout, fresh paint in a neutral palette, custom metal railings, marble/porcelain/travertine floor and wall tiles in the baths and kitchen, Silestone quartz counters throughout, Andersen windows, 50 gallon water heater for main level/basement, Rinnai tankless water heater for the 2nd story, new HVAC ductwork throughout, all new copper plumbing, and new spray foam insulation throughout for incredible energy efficiency. There are 2 masonry gas fireplaces, Kholer and Kraus fixtures throughout, Toto toilets, and Therma-Tru and Jeld Wen doors. The backyard is fully fenced, and the low-maintenance professional landscaping includes modern hardscapes in the rear yard. Walk to downtown Edison Park, the Metra, and uptown Park Ridge. So close to it all! This home is impeccable - don't delay.
Property Specifics
Single Family | |
— | |
— | |
1923 | |
— | |
BRICK BUNGALOW | |
No | |
0.1 |
Cook | |
— | |
— / Not Applicable | |
— | |
— | |
— | |
12406845 | |
09361100190000 |
Property History
DATE: | EVENT: | PRICE: | SOURCE: |
---|---|---|---|
29 Sep, 2025 | Sold | $865,000 | MRED MLS |
24 Jul, 2025 | Under contract | $875,000 | MRED MLS |
8 Jul, 2025 | Listed for sale | $875,000 | MRED MLS |










































Room Specifics
Total Bedrooms: 5
Bedrooms Above Ground: 5
Bedrooms Below Ground: 0
Dimensions: —
Floor Type: —
Dimensions: —
Floor Type: —
Dimensions: —
Floor Type: —
Dimensions: —
Floor Type: —
Full Bathrooms: 3
Bathroom Amenities: —
Bathroom in Basement: 1
Rooms: —
Basement Description: —
Other Specifics
2.5 | |
— | |
— | |
— | |
— | |
37.5X118X37.5X118 | |
— | |
— | |
— | |
— | |
Not in DB | |
— | |
— | |
— | |
— |
Tax History
Year | Property Taxes |
---|---|
2025 | $8,851 |
Contact Agent
Nearby Similar Homes
Nearby Sold Comparables
Contact Agent
Listing Provided By
Baird & Warner