7710 Linden Avenue, Darien, Illinois 60561
$433,000
|
Sold
|
|
| Status: | Closed |
| Sqft: | 1,388 |
| Cost/Sqft: | $316 |
| Beds: | 3 |
| Baths: | 2 |
| Year Built: | 1958 |
| Property Taxes: | $5,425 |
| Days On Market: | 421 |
| Lot Size: | 0,00 |
Description
Welcome to Your Dream Ranch Home! Step into this beautifully updated ranch-style home that perfectly combines modern sophistication with timeless charm. Featuring 3 bedrooms on the main floor and a versatile 4th bedroom or home office in the lower level, this property is ideal for growing families, first-time buyers, or anyone looking to downsize without compromising on style or space. The heart of the home is the stunning, fully renovated kitchen, showcasing elegant white shaker cabinets, gleaming quartz countertops, stainless steel appliances, and trendy open shelving. An island with seating, adorned with stylish gold-accented hardware, makes it as functional as it is beautiful. The kitchen flows effortlessly into the cozy dining area and family room, with a charming fireplace. Throughout the main living spaces, you'll find a mix of gleaming hardwood and durable laminate floors, complemented by new fixtures, recessed lighting, and updated doors, all enhancing the home's modern aesthetic. The two fully renovated bathrooms feature sleek, stlyish finishes, adding a touch of luxury to everyday living. The lower level extends your living space with a flexible area that can serve as a 4th bedroom, home office, or workout room, along with a dedicated laundry area for added convenience. New Furnace and garage roof. Outside, the oversized 2.5-car garage offers abundant storage and potential for a workshop, perfectly balancing practicality with charm. This move-in-ready home is a harmonious blend of thoughtful updates and cozy character. Whether you're seeking a stylish starter home or the perfect place to downsize, this gem is a must-see. Schedule your tour today and imagine the life you'll create here!
Property Specifics
| Single Family | |
| — | |
| — | |
| 1958 | |
| — | |
| — | |
| No | |
| — |
| — | |
| Brookhaven Manor | |
| — / Not Applicable | |
| — | |
| — | |
| — | |
| 12302268 | |
| 0927305018 |
Nearby Schools
| NAME: | DISTRICT: | DISTANCE: | |
|---|---|---|---|
|
Grade School
Lace Elementary School |
61 | — | |
|
Middle School
Eisenhower Junior High School |
61 | Not in DB | |
|
High School
Hinsdale South High School |
86 | Not in DB | |
Property History
| DATE: | EVENT: | PRICE: | SOURCE: |
|---|---|---|---|
| 1 Oct, 2024 | Sold | $272,500 | MRED MLS |
| 10 Sep, 2024 | Under contract | $325,000 | MRED MLS |
| — | Last price change | $375,000 | MRED MLS |
| 16 Aug, 2024 | Listed for sale | $375,000 | MRED MLS |
| 4 Apr, 2025 | Sold | $433,000 | MRED MLS |
| 11 Mar, 2025 | Under contract | $439,000 | MRED MLS |
| 3 Mar, 2025 | Listed for sale | $439,000 | MRED MLS |
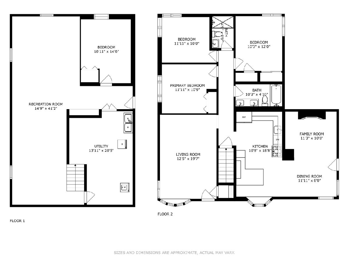
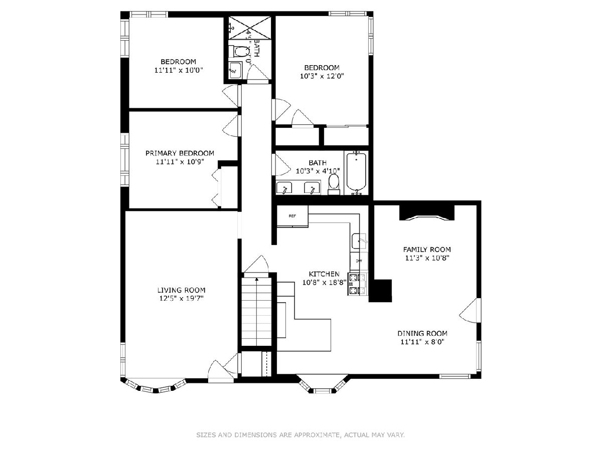
Room Specifics
Total Bedrooms: 4
Bedrooms Above Ground: 3
Bedrooms Below Ground: 1
Dimensions: —
Floor Type: —
Dimensions: —
Floor Type: —
Dimensions: —
Floor Type: —
Full Bathrooms: 2
Bathroom Amenities: Separate Shower,Double Sink,Garden Tub
Bathroom in Basement: 0
Rooms: —
Basement Description: —
Other Specifics
| 2.5 | |
| — | |
| — | |
| — | |
| — | |
| 75X125 | |
| — | |
| — | |
| — | |
| — | |
| Not in DB | |
| — | |
| — | |
| — | |
| — |
Tax History
| Year | Property Taxes |
|---|---|
| 2024 | $5,425 |
| 2025 | $5,425 |
Contact Agent
Nearby Similar Homes
Nearby Sold Comparables
Contact Agent
Listing Provided By
@properties Christie's International Real Estate


