856 Highland Avenue, Elgin, Illinois 60123
$445,000
Sold
|
|
Status: | Closed |
Sqft: | 3,641 |
Cost/Sqft: | $124 |
Beds: | 6 |
Baths: | 4 |
Year Built: | 1893 |
Property Taxes: | $8,773 |
Days On Market: | 1205 |
Lot Size: | 0,25 |
Description
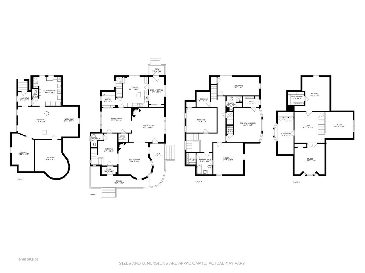
If you are a "lover" of old homes, this this Fabulous 3 story Victorian on large, corner, very private lot, with huge carriage house/garage, with loft, is for you! Outside is the wrap around stone porch, sit a spell & take in the beauty of the day! Step inside the double entry way, and you will say "WOW"! The hardwood floors, beautiful woodwork,(never painted) 2 fireplaces, many leaded glass windows, including one "museum quality", pantry off the kitchen, plus another pantry in DR. Library w/ loads of shelves, woodburning fireplace & check the "Abe Lincoln relief". Living rm with another fireplace and with curved original windows in the bay! Redone eat-in-kitchen, with island, SS appliances. 2 full baths, 2 -1/2 bths. Huge rooms with large windows.Brand new (6/22) Zoned C/A, $26K worth!!New Boiler 6 months old. Roof on house & carriage house/garage, stripped & replaced with architectural shingles, 6/7 yrs ago. Chimney repaired, tuckpointed & cleaned recently. Restored Aluminum siding recently painted with colors of Historical paint, similar to original paint from 1893. 4 beds on second fl, plus office. 3rd fl, has 2 more beds, bonus rm, open to the loft, storage area with cedar closet. This 3rd floor used to be a Ballroom! Just imagine going up those stairs with long, hoop skirts & leather shoes with those little heels! Nope! The basement has 2 storage areas, a workshop area, open area, laundry area with stone sink, lots of cabinets & 1/2 bth, plus an outside entrance. The stunning yard has a Mulberry tree, Pear tree, 2 apple trees, Honey crisp & Sweet 16. Several lilac trees, one blooms in the spring & another blooms in the Fall! Knockout rosebushes, and peony bushes. Raspberry and Rhubarb plants and Honey Berry bush. The owners have lovely taken care of this elegant home, but time to move to warmer weather they tell me. Now is your chance to enjoy all that this "old girl" has to offer. Once you have been inside, you won't want to leave, it is that fabulous!
Property Specifics
Single Family | |
— | |
— | |
1893 | |
— | |
3 STORY | |
No | |
0.25 |
Kane | |
— | |
0 / Not Applicable | |
— | |
— | |
— | |
11456421 | |
0614155009 |
Property History
DATE: | EVENT: | PRICE: | SOURCE: |
---|---|---|---|
25 Oct, 2013 | Sold | $195,000 | MRED MLS |
20 Sep, 2013 | Under contract | $219,900 | MRED MLS |
— | Last price change | $239,900 | MRED MLS |
26 Jun, 2013 | Listed for sale | $239,900 | MRED MLS |
30 Sep, 2022 | Sold | $445,000 | MRED MLS |
2 Aug, 2022 | Under contract | $449,900 | MRED MLS |
— | Last price change | $350,000 | MRED MLS |
6 Jul, 2022 | Listed for sale | $449,900 | MRED MLS |







































Room Specifics
Total Bedrooms: 6
Bedrooms Above Ground: 6
Bedrooms Below Ground: 0
Dimensions: —
Floor Type: —
Dimensions: —
Floor Type: —
Dimensions: —
Floor Type: —
Dimensions: —
Floor Type: —
Dimensions: —
Floor Type: —
Full Bathrooms: 4
Bathroom Amenities: —
Bathroom in Basement: 1
Rooms: —
Basement Description: Partially Finished,Unfinished,Exterior Access,Storage Space
Other Specifics
2 | |
— | |
Concrete | |
— | |
— | |
136 X 133 | |
— | |
— | |
— | |
— | |
Not in DB | |
— | |
— | |
— | |
— |
Tax History
Year | Property Taxes |
---|---|
2013 | $7,783 |
2022 | $8,773 |
Contact Agent
Nearby Similar Homes
Nearby Sold Comparables
Contact Agent
Listing Provided By
Berkshire Hathaway HomeServices Starck Real Estate